$525,000
153 Browning Street, Portland, VIC 3305
Large quality shedding on spacious land
Set in an established industrial area of Portland with easy access from town and set just off the main truck route into Portland is this this 3967m2 industrial allotment.
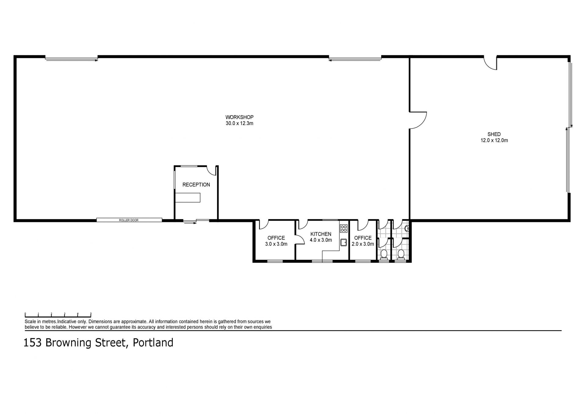
The property is tenanted by 2 business's, a longtime mechanic occupies the shed which boasts a large floor area of approximately 512m2, offices, toilets, kitchen amenitites, 3 phase power and a mechanic pit making this the ideal set up.
Outside a planning permit has been approved to use the hard stand land at the rear of the property as a self storage facility. This too has a long term tenant in place and overall creates a fantastic return on investment.
Contact Assets Real Estate today to arrange your inspection.
The property is tenanted by 2 business's, a longtime mechanic occupies the shed which boasts a large floor area of approximately 512m2, offices, toilets, kitchen amenitites, 3 phase power and a mechanic pit making this the ideal set up.
Outside a planning permit has been approved to use the hard stand land at the rear of the property as a self storage facility. This too has a long term tenant in place and overall creates a fantastic return on investment.
Contact Assets Real Estate today to arrange your inspection.
Property Info
Municipality
Portland
- 3,967 Sqm
Assets Real Estate Portland & Heywood Portland
96 Percy Street
Portland, VIC 3305
Tel: +61355223333
NEARBY PROPERTIES
Sue Merryfull
Thank You
Your enquiry has been sent!
Enquiry is Failed
Please contact your administrator.