SOLD
17 Julia Street, Portland, VIC 3305
Central Opportunity
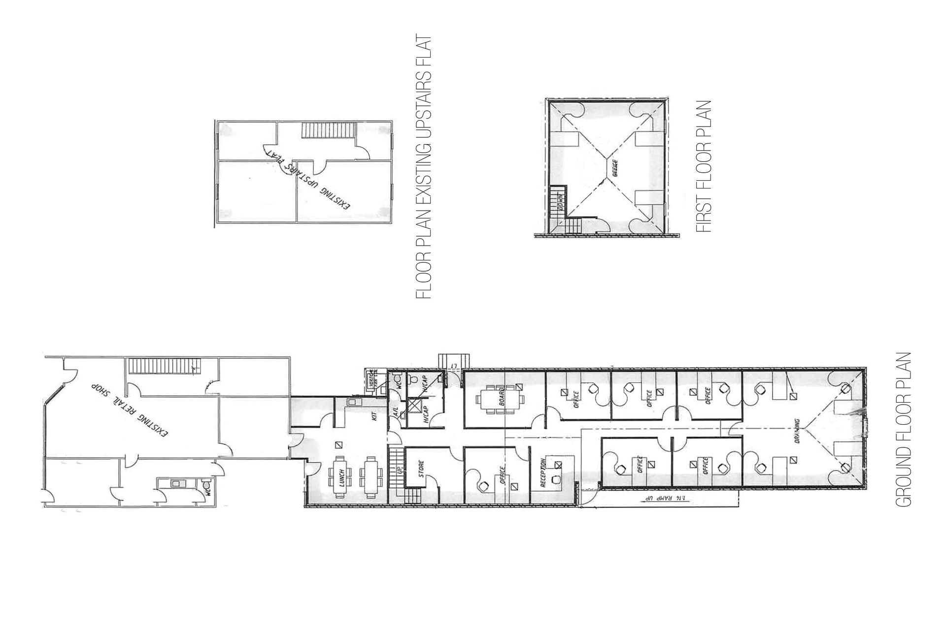
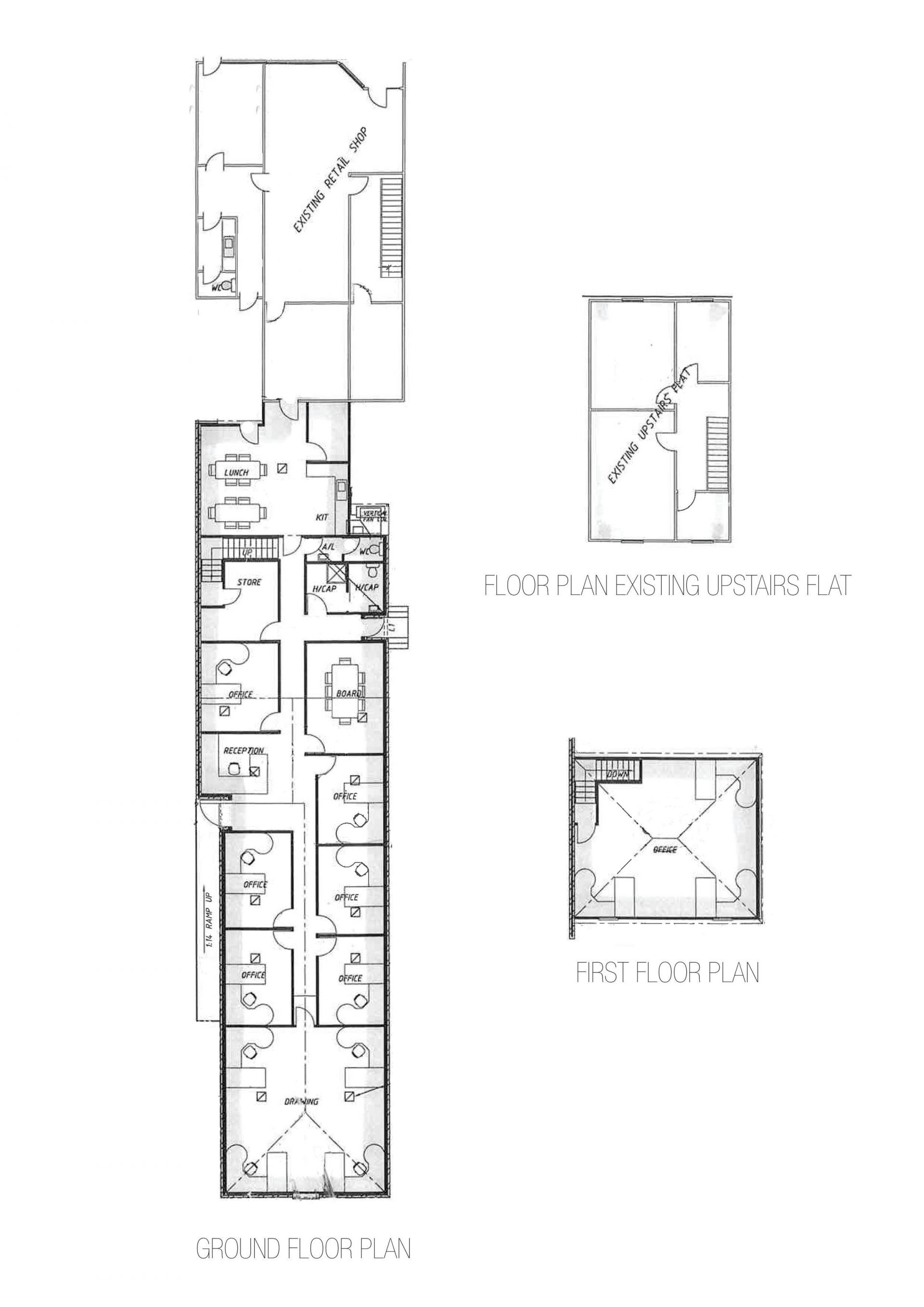
This property is awaiting the perfect buyer to jump on the opportunity of owning a slice of Portland's ever growing Commercial Real Estate in the heart of town on the bustling Julia Street where traders thrive. The approximate 605m2 building has endless opportunity for a business savvy person to potentially grow a business and contribute to Portland's local trade or alternatively own a building that has the potential of high return.
Sitting on two titles makes the property ideal for development by converting the space into two shops with the potential for multiple applications to utilise the space simultaneously. Offering plentiful street parking, rear access and great kitchen and bathroom facilities which could tick a lot of boxes for potential vendors or traders.
In addition to the downstairs commercial space, there is also a two-bedroom unit upstairs perfect for a residential tenant to reside. Also featuring a large office space which could be used for many things such as a corporate boardroom, storage or an optional extra office space.
Invest in the trending town of Portland and be a part of a business savvy community.
Do not miss out, this building won't sit for long. Contact us today to book an inspection.
Sitting on two titles makes the property ideal for development by converting the space into two shops with the potential for multiple applications to utilise the space simultaneously. Offering plentiful street parking, rear access and great kitchen and bathroom facilities which could tick a lot of boxes for potential vendors or traders.
In addition to the downstairs commercial space, there is also a two-bedroom unit upstairs perfect for a residential tenant to reside. Also featuring a large office space which could be used for many things such as a corporate boardroom, storage or an optional extra office space.
Invest in the trending town of Portland and be a part of a business savvy community.
Do not miss out, this building won't sit for long. Contact us today to book an inspection.
Property Info
Municipality
Portland
- 605 Sqm
Assets Real Estate Portland & Heywood Portland
96 Percy Street
Portland, VIC 3305
Tel: +61355223333
NEARBY PROPERTIES
Kevin Hughes
Thank You
Your enquiry has been sent!
Enquiry is Failed
Please contact your administrator.