SOLD
59 Holt St, Ardeer, VIC 3022
2 Existing Shops & Dwelling or Medical Centre
Phone enquiries - please quote property ID 17234
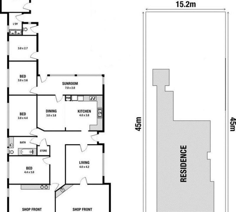
There are 2 existing shops in the front of the property that can be used as retail shops or consulting rooms and a massive dwelling/home behind.
The house current has 7 large bedrooms(which includes 3 rooms for shops at the front).
You can keep using it as a set of shops or develop the medical centre.
Some details about the medical permits:
1st Medical Centre On The Busy Side Of Ardeer – Get In Quick!
With Permits for 3 Full Time Doctors – Image the Possibilities
Huge 628 Sqm Block
13 Carparks Dedicated On Site to the Medical Centre.
Planning Permits approved by council.
Very Low Competition - There are currently NO medical centres on the busy side of Ardeer. Closest medical centre is 3.5 Km away.
Excellent exposure, busy car wash next door and 100s of Powercor workers situated right across the road.
Can be operated 7 days a week, if you choose.
Right off busy Ballarat Rd.
Features on Plans:
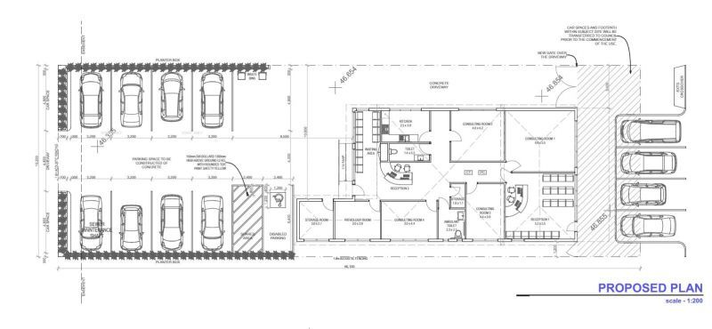
* 200 sqm of Medical Centre Floor Space in total
* 7 Rooms in Total
* 2 Reception Areas
* Staff Kitchen
* Staff Toilets
* 2 Staff Car parks on Title
* Ample Parking Spaces - 13 Off Street Car parks In Total On Title
* Secure Front Gate when the centre is closed
* Convenient Disabled Parking
* Disabled Ramp Access – at rear
* Access To Western Ring Rd around the corner, 15 minutes to the city.
* Close to transport important for clients.
*Note all pictures are visualisations, currently there is are 2 x shops and dwelling on site.
Terms Negotiable Settlement
Looking for offers above this price.
DISCLAIMER No Agent Business (www.noagentbusiness.com.au) is an Australian For Sale By Owner website operating since 1999. We proudly assist commercial property owners who are looking to sell or lease their own commercial property without paying any real estate commission. While every care has been taken to verify the accuracy of the details in this advertisement, the correctness cannot be guaranteed.
There are 2 existing shops in the front of the property that can be used as retail shops or consulting rooms and a massive dwelling/home behind.
The house current has 7 large bedrooms(which includes 3 rooms for shops at the front).
You can keep using it as a set of shops or develop the medical centre.
Some details about the medical permits:
1st Medical Centre On The Busy Side Of Ardeer – Get In Quick!
With Permits for 3 Full Time Doctors – Image the Possibilities
Huge 628 Sqm Block
13 Carparks Dedicated On Site to the Medical Centre.
Planning Permits approved by council.
Very Low Competition - There are currently NO medical centres on the busy side of Ardeer. Closest medical centre is 3.5 Km away.
Excellent exposure, busy car wash next door and 100s of Powercor workers situated right across the road.
Can be operated 7 days a week, if you choose.
Right off busy Ballarat Rd.
Features on Plans:
* 200 sqm of Medical Centre Floor Space in total
* 7 Rooms in Total
* 2 Reception Areas
* Staff Kitchen
* Staff Toilets
* 2 Staff Car parks on Title
* Ample Parking Spaces - 13 Off Street Car parks In Total On Title
* Secure Front Gate when the centre is closed
* Convenient Disabled Parking
* Disabled Ramp Access – at rear
* Access To Western Ring Rd around the corner, 15 minutes to the city.
* Close to transport important for clients.
*Note all pictures are visualisations, currently there is are 2 x shops and dwelling on site.
Terms Negotiable Settlement
Looking for offers above this price.
DISCLAIMER No Agent Business (www.noagentbusiness.com.au) is an Australian For Sale By Owner website operating since 1999. We proudly assist commercial property owners who are looking to sell or lease their own commercial property without paying any real estate commission. While every care has been taken to verify the accuracy of the details in this advertisement, the correctness cannot be guaranteed.
Property Info
Municipality
Ardeer
- 13
No Agent Property Brighton East
Suite 1a, 608 Hawthorn Road
Brighton East, VIC 3187
Tel: +611300850855
NEARBY PROPERTIES
No Agent Property
Thank You
Your enquiry has been sent!
Enquiry is Failed
Please contact your administrator.