$750K + or lease $48k pa
1 Cookson Street, Camberwell, VIC 3124
GREAT VALUE SPACE - $750K + or lease $48k pa - PRIME BURKE ROAD CORNER
POINT OF INTEREST:
A clever retail, office, or show-and-sell space, this lower-level commercial opportunity is in a prime position to service the upper echelon of Camberwell’s affluent locals. The space delivers a self contained open plan 240 sqm* area surrounded by cafés, banks, retailers and a newly upgraded streetscape that makes the workday more connected and convenient. Inside, a flexible floorplan balances private offices, meeting rooms, and open-plan zones — ideal for retail, professional services, allied health, education, pilates, yoga or wellness operators, wanting a visible, long-term base in Camberwell. A fully equipped kitchen, modern bathroom with shower and both front and rear access make day-to-day operations effortless, while heating and cooling ensure comfort across all seasons. Sitting directly opposite the station, the 72 tram is also a few metres away and so is Woolworths, Kmart, ALDI, plus MECCA, lululemon and the Camberwell Shopping Centre.
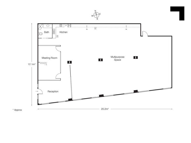
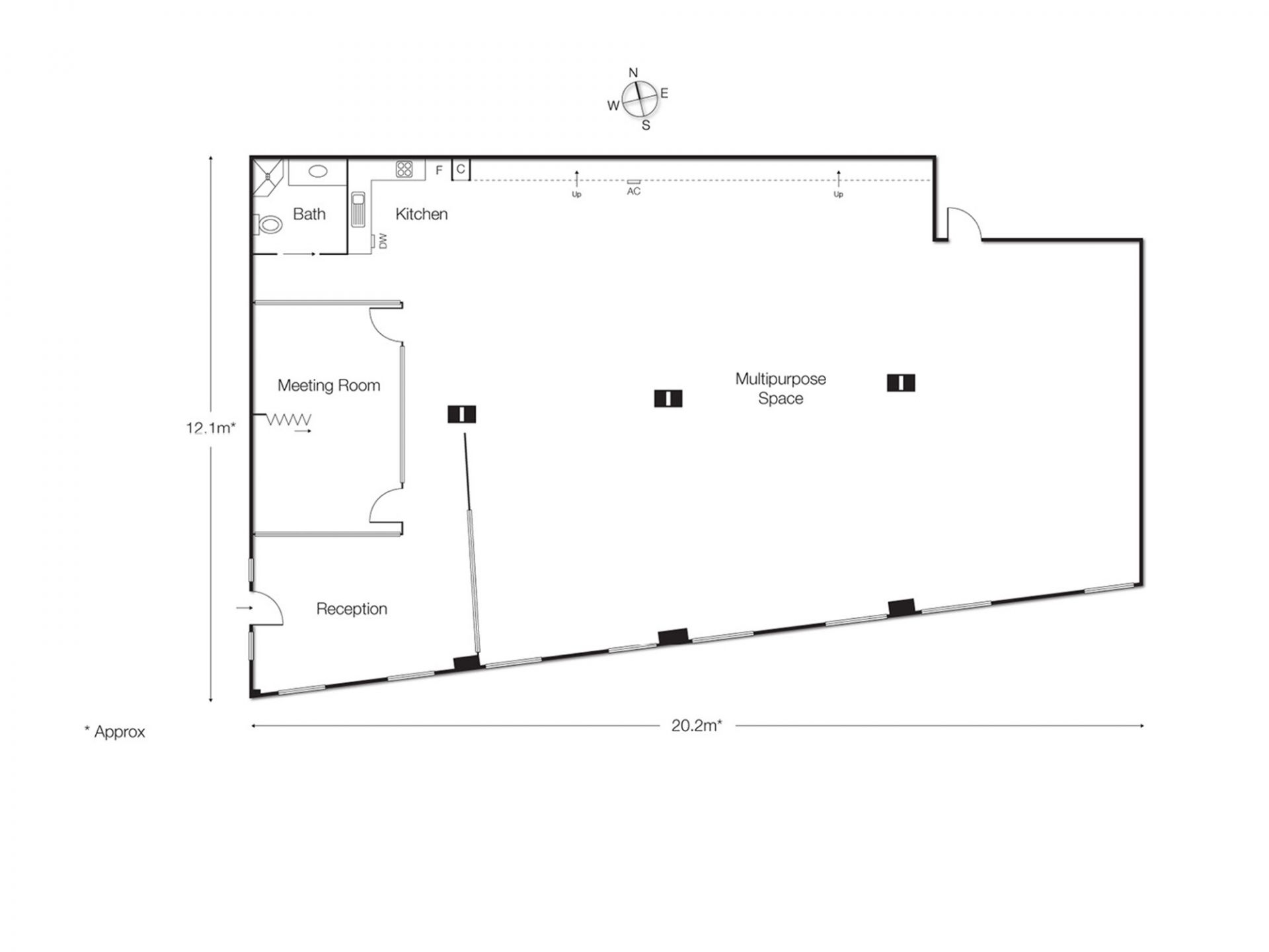
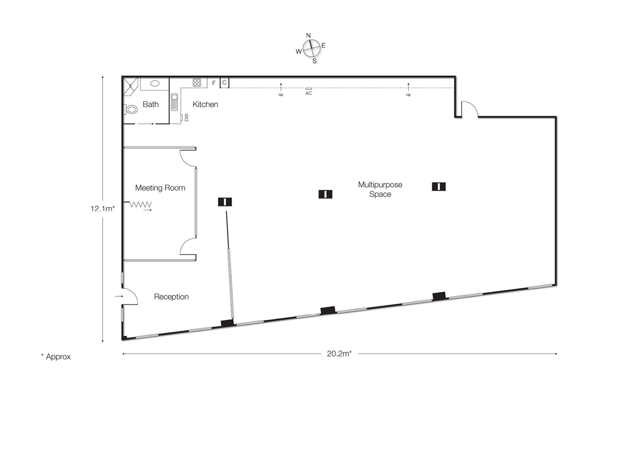
- 240 sqm* total building area.
- Prime corner position on Burke Road and Cookson Street.
- Directly opposite Camberwell Station
- Versatile layout with offices, open-plan areas and meeting rooms.
- Commercial 1 zoning.
- Modern bathroom with shower and a fully equipped kitchen.
- 2.8 km* to the Citylink.
- 4.6 km* to the Eastern Freeway.
- Sale of going concern, GST exempt.
- Under two separate titles providing additional flexibility.
POINT OF VIEW:
With Camberwell Station at the door and local hotspots in every direction, this is a move-in-ready opportunity to plant your business in a location where the foot traffic works hard and spends harder
Property Info
LEGAL DOCUMENTS
Thank You
Your enquiry has been sent!
Enquiry is Failed
Please contact your administrator.