$1,200,000 - $1,300,000 + GST
2, 124 Terralong Street, Kiama, NSW 2533
Tenanted Investment in Central Kiama Location! Fresh and modern office or retail space
An excellent opportunity to secure a tenanted investment property in this modern residential and commercial complex.
The building has direct street exposure making the space perfect for a current investor or future business owner.
The tenant has a current 5 x 5 (3 years into the first 5 years).
Lease details available on request.
Return on investment above 5% PA.
Currently fitted out for retail showroom. These premises offer a versatile space suited to a number of business types. Ideal for professional groups such as accounts, solicitors, real estate with separate consulting areas or a light open retail space.
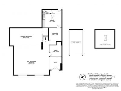
Located in the heart of Kiama, the space has been equipped with a kitchenette, internal toilet and storage space. Internal access for delivery and secure parking.
Features include:
• Security internal car park
• Kitchenette
• Private internal toilet
• New Mitsubishi heavy industries split system ducted air conditioning (April 2025)
• Excellent north facing street exposure and wheelchair access.
• Large internal storage space
Total Area 136.5 approximately
• Internal floor area 110 sqm total (approx.)
• Kitchen and toilet area 14.8 sqm total (approx.)
• Loft storage area 15.8 sqm total (approx.)
• 14 sqm internal parking space (approx.)
Income and expenditure figures sent on request.
*Agent discloses interest
Property Info
LEGAL DOCUMENTS
Thank You
Your enquiry has been sent!
Enquiry is Failed
Please contact your administrator.