SOLD
200-202 Midland Hwy, Epsom, VIC 3551
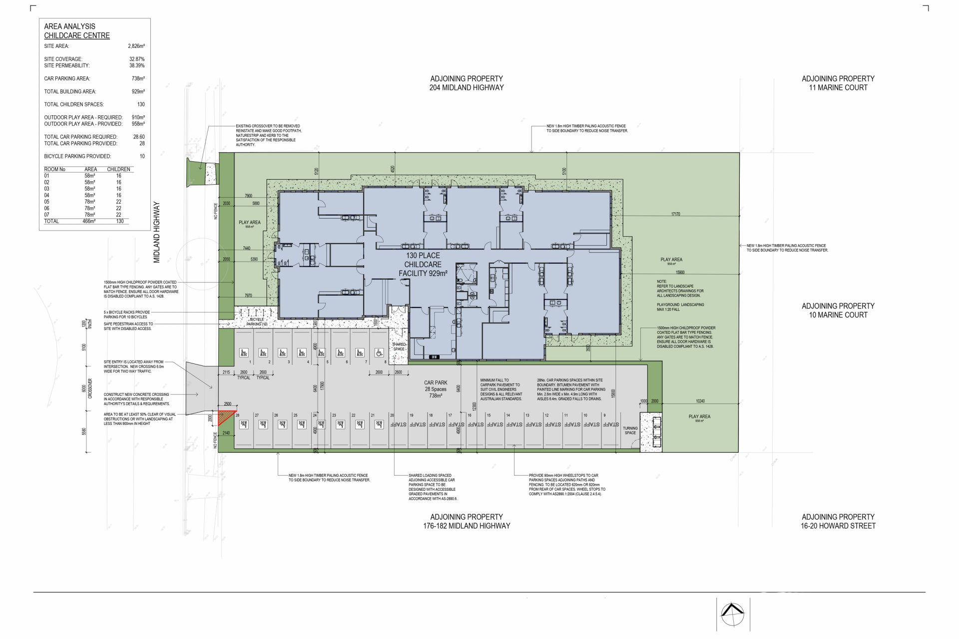
Approved development site for 130 place childcare centre
- General residential land of 2,826m2 in an extremely high profile blue chip locale only minutes to central Bendigo
- Approved permit for development of a 130 place childcare centre with a state of the art design
- Ideal site for medical/consulting centre, fast food outlet, allied health premises etc
- Prominent site on the edge of the Epsom Village Woolworths shopping complex
- Seize the opportunity in an environment where childcare places in the Bendigo/Epsom area are extremely difficult to secure. In this locale there is significant demand for childcare places
- The planning permit is already in place for this 130 place childcare centre and it is development approved.
- Located in a very strong growth corridor of Bendigo where many family homes continue to be established in both Epsom and nearby Huntly. One of the few remaining sites available along the Midland highway for the establishment of a new business, in recent times most sites available have been taken up
- The site is only 7.0km to Central Bendigo or 13 minutes travel time to Bendigo. The Epsom train station is very close by
Key attributes of the property include:
-2,826 sqm land holding with 40.38m frontage
-Permit approved for a130 place childcare centre
This information has been provided to us by third parties and we do not accept any responsibility for its accuracy. You should make your own enquiries and check the information so as to determine whether or not this information is in fact accurate. You must make your own assessment and obtain professional advice if necessary.
Property Code: 925
- Approved permit for development of a 130 place childcare centre with a state of the art design
- Ideal site for medical/consulting centre, fast food outlet, allied health premises etc
- Prominent site on the edge of the Epsom Village Woolworths shopping complex
- Seize the opportunity in an environment where childcare places in the Bendigo/Epsom area are extremely difficult to secure. In this locale there is significant demand for childcare places
- The planning permit is already in place for this 130 place childcare centre and it is development approved.
- Located in a very strong growth corridor of Bendigo where many family homes continue to be established in both Epsom and nearby Huntly. One of the few remaining sites available along the Midland highway for the establishment of a new business, in recent times most sites available have been taken up
- The site is only 7.0km to Central Bendigo or 13 minutes travel time to Bendigo. The Epsom train station is very close by
Key attributes of the property include:
-2,826 sqm land holding with 40.38m frontage
-Permit approved for a130 place childcare centre
This information has been provided to us by third parties and we do not accept any responsibility for its accuracy. You should make your own enquiries and check the information so as to determine whether or not this information is in fact accurate. You must make your own assessment and obtain professional advice if necessary.
Property Code: 925
Property Info
Municipality
Epsom
LEGAL DOCUMENTS
Thank You
Your enquiry has been sent!
Enquiry is Failed
Please contact your administrator.