$930,000
6 Federal Road, South Kalgoorlie, WA 6430
Prime Commercial Gem: Showroom, Workshop, and Living Quarters - Your All-in-One Business Solution!
Welcome to your ultimate business destination! This newly listed service commercial property offers a dynamic combination of a spacious showroom, a workshop, and a living quarters for the manager upstairs. With versatile spaces designed to accommodate your every need, seize the opportunity to elevate your business operations to new heights in this prime location.
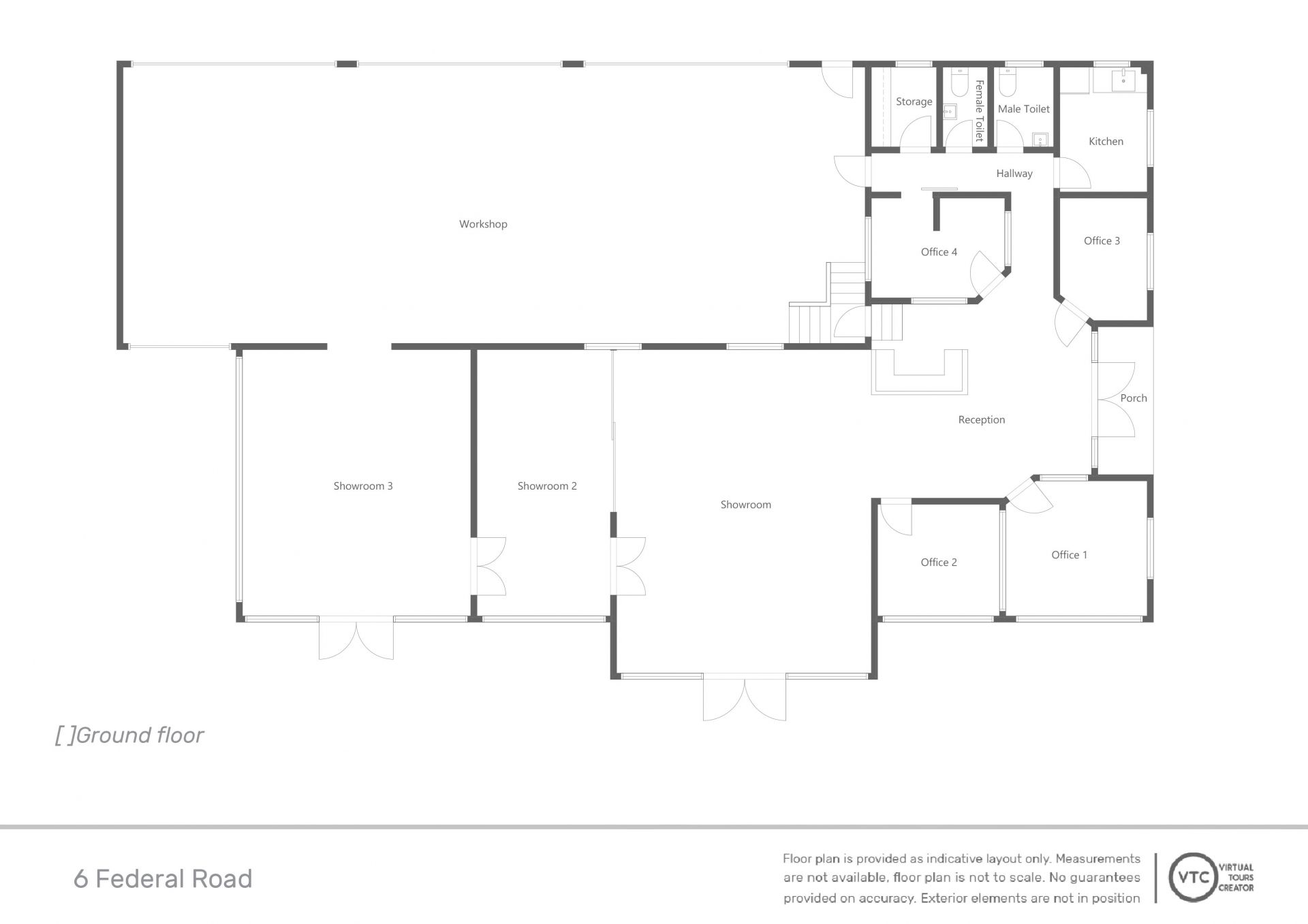
• Eye catching show room to the front of the property w/ lots of natural light
• 4 office spaces
• Reception area
• Male & female bathroom facilities
• Staff kitchen
• Workshop (approx. 170m2)
• Side awning with washdown bay (approx. 220m2)
• Upstairs living quarters w/ bathroom & kitchen
• Corner site offering ample access points
• Large paved frontage area (great for parking or displaying equipment / products)
• Zoned Service Commercial
• Total land area is 1666m2
Unlock endless possibilities and watch your business thrive in this spacious and versatile service commercial zoned property - seize the opportunity today and call to arrange an onsite or Facetime/Whatsapp inspection.
**Conjunctionals Welcomed
Disclaimer: Whilst every care has been taken in the preparation of this advertisement, accuracy can not be guaranteed. To the best of our knowledge the information listed is true and accurate however may be subject to change without warning at any time and this is often out of our control. Prospective tenants and purchasers should make their own enquiries to satisfy themselves on the pertinent matters. Details herein do not constitute any representation by the owner or the agent and are expressly excluded from any contract
• Eye catching show room to the front of the property w/ lots of natural light
• 4 office spaces
• Reception area
• Male & female bathroom facilities
• Staff kitchen
• Workshop (approx. 170m2)
• Side awning with washdown bay (approx. 220m2)
• Upstairs living quarters w/ bathroom & kitchen
• Corner site offering ample access points
• Large paved frontage area (great for parking or displaying equipment / products)
• Zoned Service Commercial
• Total land area is 1666m2
Unlock endless possibilities and watch your business thrive in this spacious and versatile service commercial zoned property - seize the opportunity today and call to arrange an onsite or Facetime/Whatsapp inspection.
**Conjunctionals Welcomed
Disclaimer: Whilst every care has been taken in the preparation of this advertisement, accuracy can not be guaranteed. To the best of our knowledge the information listed is true and accurate however may be subject to change without warning at any time and this is often out of our control. Prospective tenants and purchasers should make their own enquiries to satisfy themselves on the pertinent matters. Details herein do not constitute any representation by the owner or the agent and are expressly excluded from any contract
Property Info
Municipality
South Kalgoorlie
Thank You
Your enquiry has been sent!
Enquiry is Failed
Please contact your administrator.