Contact Agent
3/24 Mason Street, Warragul, VIC 3820
Fantastic Leasing Opportunity!
Located on the brink of Warragul's CBD, this commercial premises provides high exposure for businesses. With two titles on the allotment, the premises is ready to be taken to its highest business potential.
Features include:
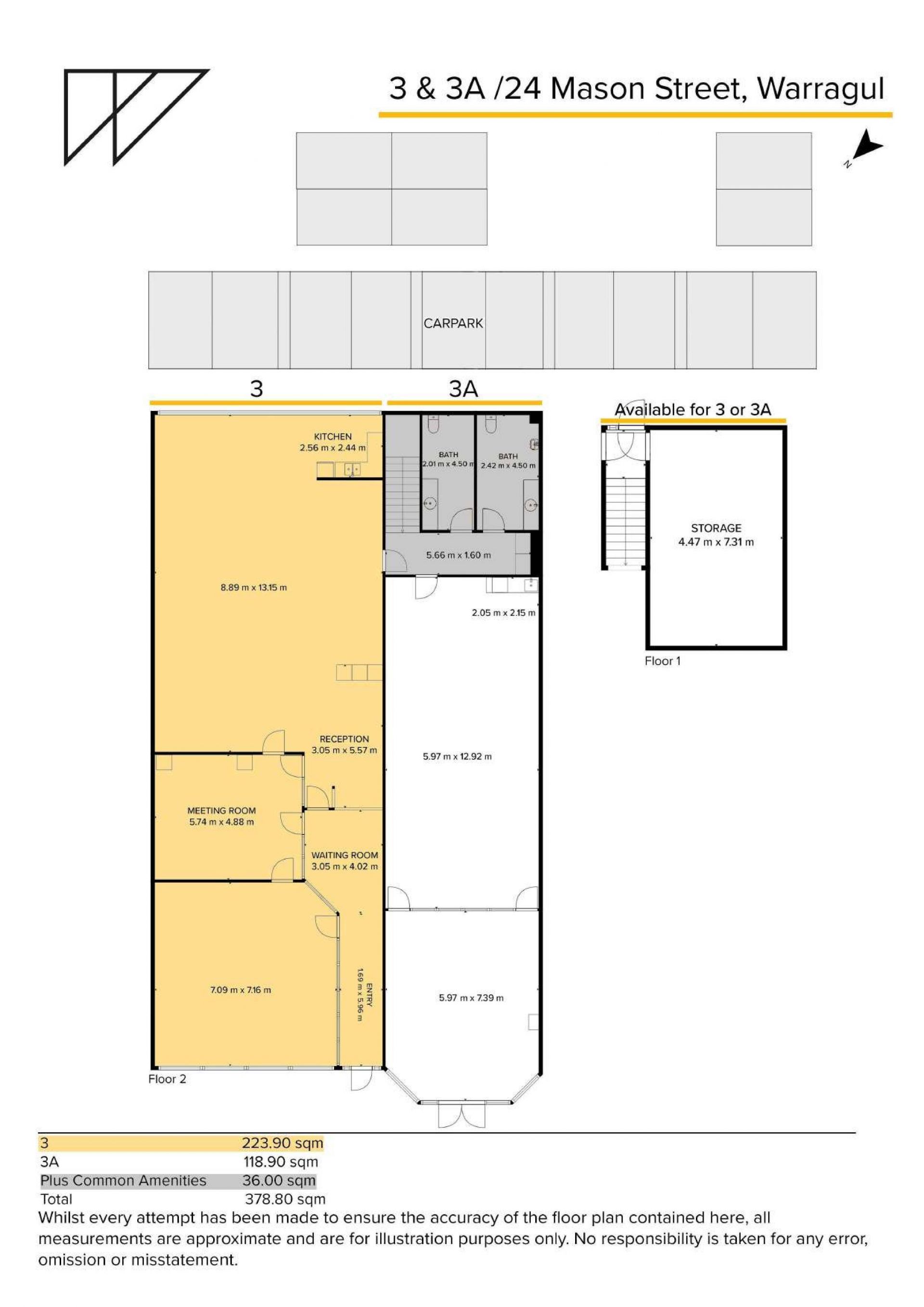
- Internal area 223.9sqm with 36sqm common amenities
- Two spacious offices
- Rear open plan work area with an abundance of natural light
- Lower floor rear store room available
- Kitchenette facilities
- Heating & cooling throughout
- Great rear onsite private parking & Street parking available
- Common amenities include disability accessible M & F toilets
Features include:
- Internal area 223.9sqm with 36sqm common amenities
- Two spacious offices
- Rear open plan work area with an abundance of natural light
- Lower floor rear store room available
- Kitchenette facilities
- Heating & cooling throughout
- Great rear onsite private parking & Street parking available
- Common amenities include disability accessible M & F toilets
Property Info
Municipality
Warragul
Thank You
Your enquiry has been sent!
Enquiry is Failed
Please contact your administrator.