$0
10/104-110 Keys Rd, Cheltenham, VIC 3192
HUGE SPACE WITH HUGE EXPOSURE
Phone enquiries - please quote property ID 31813.
This is an extraordinary opportunity to lease this commercial property with a huge 2032m2 space to make it what you want. Whether it is for a warehouse, office, retail or leisure business, this property will be available to facilitate (STCA). All in your hands to make it what you want! Huge Keys Road frontage, huge space, 25 car spaces.
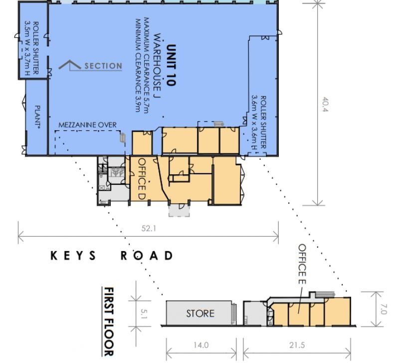
Available Space comprises:
Ground Floor Warehouse 1461m2
Ground Floor Office 373m2
First Floor Office 127m2
First Floor Storage 71m2
Dual Roller Door Access, Three Phase Power, Easy Access to Major Arterial Roads, Triple Cross-Over, Multiple Staff Amenities on site, Showroom.
DISCLAIMER No Agent Business (www.noagentbusiness.com.au) is an Australian For Sale By Owner website operating since 1999. We proudly assist commercial property owners who are looking to sell or lease their own commercial property without paying any real estate commission. While every care has been taken to verify the accuracy of the details in this advertisement, the correctness cannot be guaranteed.
This is an extraordinary opportunity to lease this commercial property with a huge 2032m2 space to make it what you want. Whether it is for a warehouse, office, retail or leisure business, this property will be available to facilitate (STCA). All in your hands to make it what you want! Huge Keys Road frontage, huge space, 25 car spaces.
Available Space comprises:
Ground Floor Warehouse 1461m2
Ground Floor Office 373m2
First Floor Office 127m2
First Floor Storage 71m2
Dual Roller Door Access, Three Phase Power, Easy Access to Major Arterial Roads, Triple Cross-Over, Multiple Staff Amenities on site, Showroom.
DISCLAIMER No Agent Business (www.noagentbusiness.com.au) is an Australian For Sale By Owner website operating since 1999. We proudly assist commercial property owners who are looking to sell or lease their own commercial property without paying any real estate commission. While every care has been taken to verify the accuracy of the details in this advertisement, the correctness cannot be guaranteed.
Property Info
Municipality
Cheltenham
Thank You
Your enquiry has been sent!
Enquiry is Failed
Please contact your administrator.