Contact Agent
23 Village Avenue, Doncaster, VIC 3108
Prime Commercial Property: Invest or Operate (Freehold)
Discover the endless possibilities of this remarkable commercial property located in the thriving suburb of Doncaster. It offers a forward-thinking solution with solar panels, making it an eco-friendly and cost-effective establishment. The property also provides the enticing potential to extend the back or add another level, allowing you to expand your horizons and unleash your creativity.
Located in a coveted Commercial Zone 1, this property offers a multitude of business opportunities. You can establish your own successful eatery or convert it into a commercial kitchen to cater to the growing demand for culinary ventures. The property also provides ample parking, making it a rare find in bustling areas.
Surrounded by high-density residences, the location guarantees a constant flow of foot traffic, making it a captive audience eager to explore the thriving local scene. The suburb is renowned for its vibrant lifestyle, exceptional amenities, leisure facilities, and sense of community.
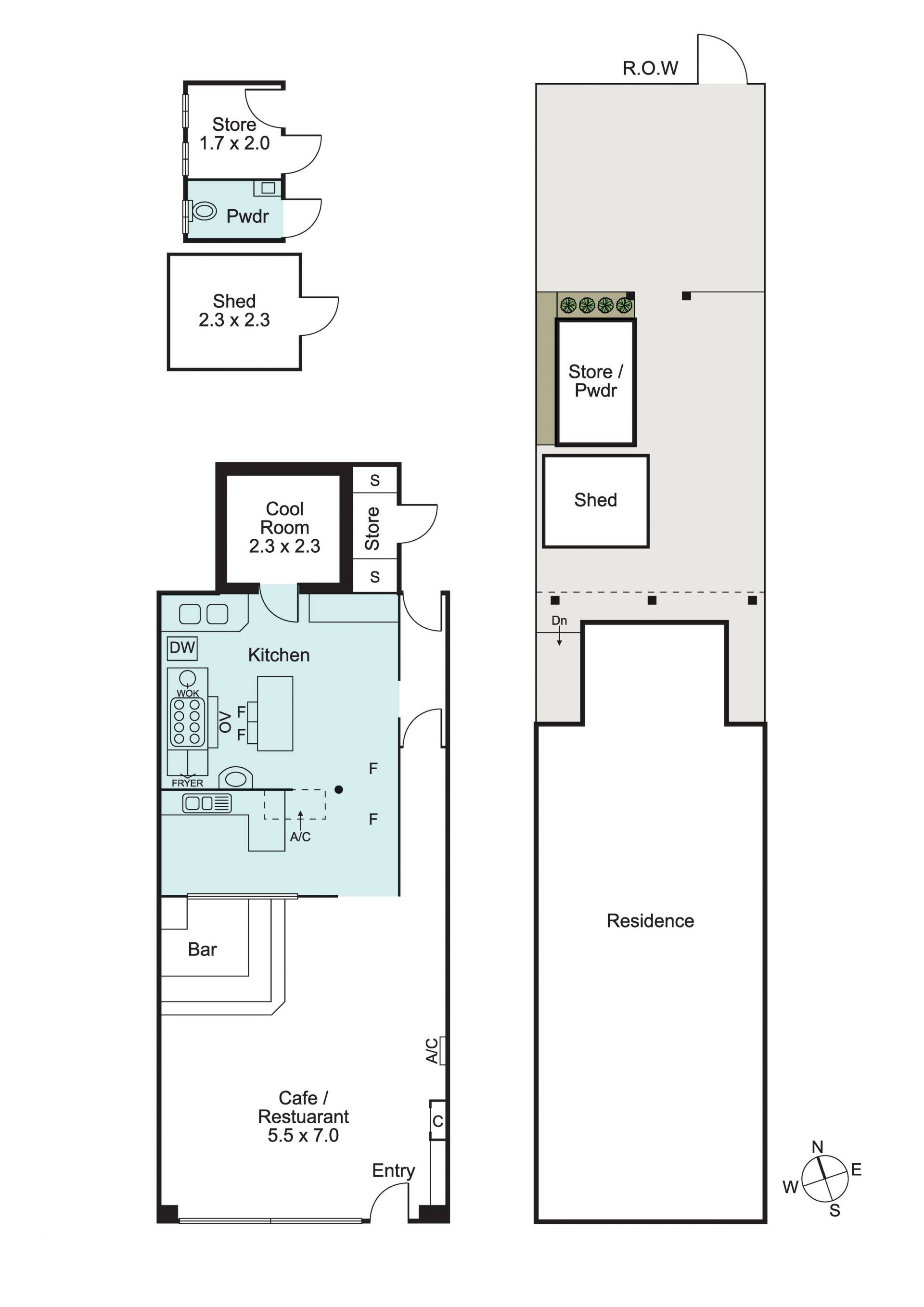
The property also includes a coldroom, making it a valuable asset for any food-based business. It allows you to maintain optimum inventory levels, ensuring smooth operations and customer satisfaction.
Strategically positioned near the Eastern Freeway, this Dragon's Head location connects you to the heart of Melbourne, enabling seamless transportation and accessibility for both customers and staff.
Don't miss out on this extraordinary opportunity to secure a commercial property that not only offers immediate value but also possesses the potential for endless possibilities. Envision the business of your dreams and make it a reality in this thriving suburb. Contact us today to embark on an exciting journey of prosperity and success.
Located in a coveted Commercial Zone 1, this property offers a multitude of business opportunities. You can establish your own successful eatery or convert it into a commercial kitchen to cater to the growing demand for culinary ventures. The property also provides ample parking, making it a rare find in bustling areas.
Surrounded by high-density residences, the location guarantees a constant flow of foot traffic, making it a captive audience eager to explore the thriving local scene. The suburb is renowned for its vibrant lifestyle, exceptional amenities, leisure facilities, and sense of community.
The property also includes a coldroom, making it a valuable asset for any food-based business. It allows you to maintain optimum inventory levels, ensuring smooth operations and customer satisfaction.
Strategically positioned near the Eastern Freeway, this Dragon's Head location connects you to the heart of Melbourne, enabling seamless transportation and accessibility for both customers and staff.
Don't miss out on this extraordinary opportunity to secure a commercial property that not only offers immediate value but also possesses the potential for endless possibilities. Envision the business of your dreams and make it a reality in this thriving suburb. Contact us today to embark on an exciting journey of prosperity and success.
PROPERTY FEATURES
- Air Conditioning
- Car Parking - Surface
- Close to Shops
- Close to Transport
- Existing Fitout
- Grease Trap
Property Info
Municipality
Doncaster
Thank You
Your enquiry has been sent!
Enquiry is Failed
Please contact your administrator.