Contact Agent
280 Gilbert Street, Adelaide, SA 5000
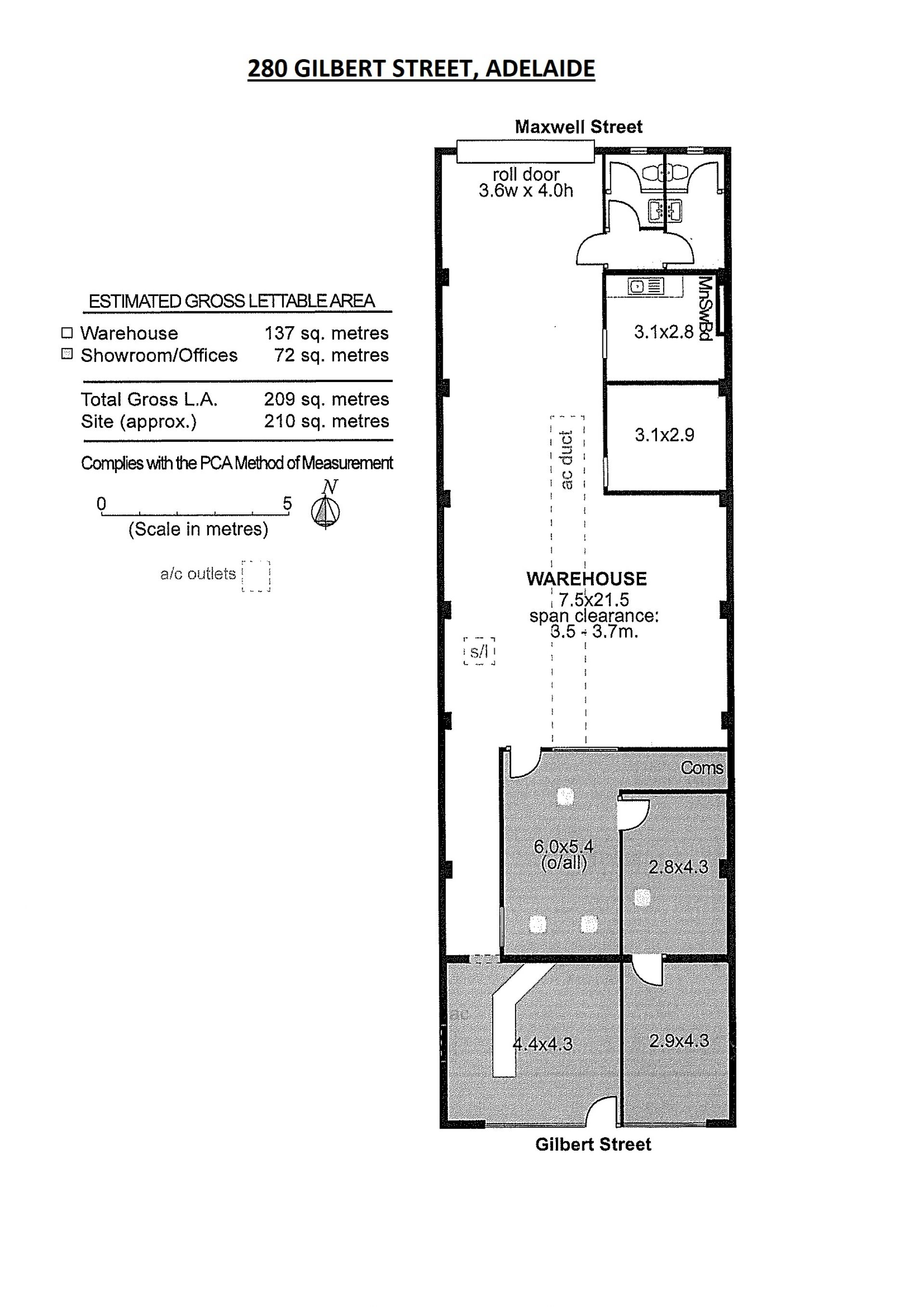
COMPACT CITY OFFICE/SHOWROOM/WAREHOUSE WITH VALUABLE REAR ROLLER DOOR ACCESS
Opportunity to secure a well located city warehouse/office that occupies the whole of the land, with frontage to Maxwell Street at rear.
Available for immediate letting.
Minimum initial lease term of 3 years is seen as essential.
For further details and inspection contact Sole Leasing Agents, George Zogopoulos, 8410 6444 or 0412 824 278.
Available for immediate letting.
Minimum initial lease term of 3 years is seen as essential.
For further details and inspection contact Sole Leasing Agents, George Zogopoulos, 8410 6444 or 0412 824 278.
Property Info
Municipality
Adelaide
Thank You
Your enquiry has been sent!
Enquiry is Failed
Please contact your administrator.