Contact Agent
8, 18-28 Gray Street, Kilkenny, SA 5009
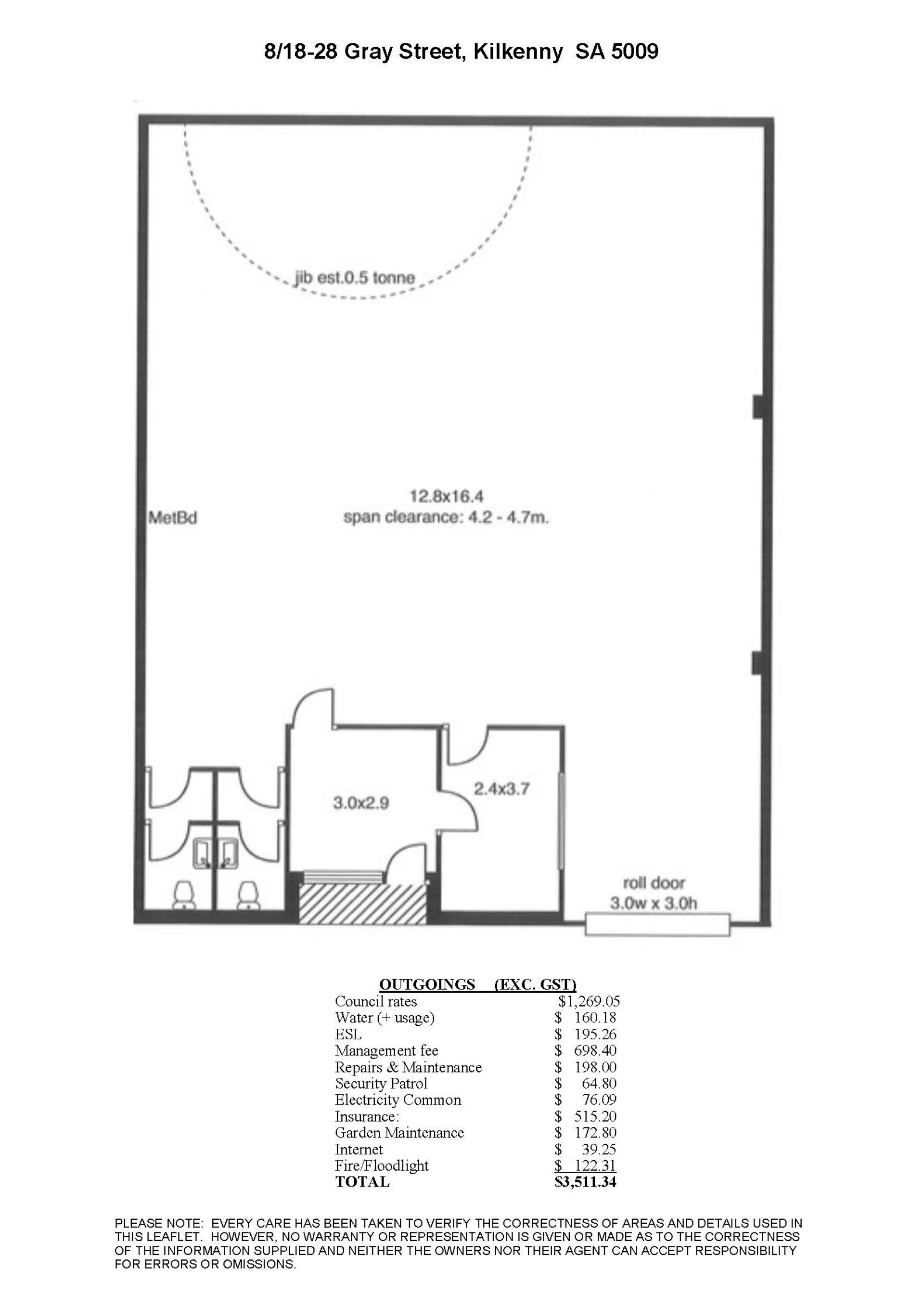
WAREHOUSE/OFFICE/SHOWROOM OF 218 SQM
- Inside span clearance 4.2m - 4.7m
- Roller door access 3m x 3m
- Hot water to amenities
- 3 Phase power
- Available August 2023
For more information or to arrange an inspection please contact Philip Blows on 08 8223 2366 or 0439 035 001.
RLA 510
- Roller door access 3m x 3m
- Hot water to amenities
- 3 Phase power
- Available August 2023
For more information or to arrange an inspection please contact Philip Blows on 08 8223 2366 or 0439 035 001.
RLA 510
Property Info
Municipality
Kilkenny
Thank You
Your enquiry has been sent!
Enquiry is Failed
Please contact your administrator.