Contact Agent
Level 1, Tenancy 2, 30 Gawler Street, Salisbury, SA 5108
WELL POSITIONED OFFICE ACCOMMODATION- EXTENSIVE FIT OUT AND EXCELLENT AMENITIES
Opportunity to secure well positioned office accommodation, high quality office tenancy with extensive fit-out and excellent amenities.
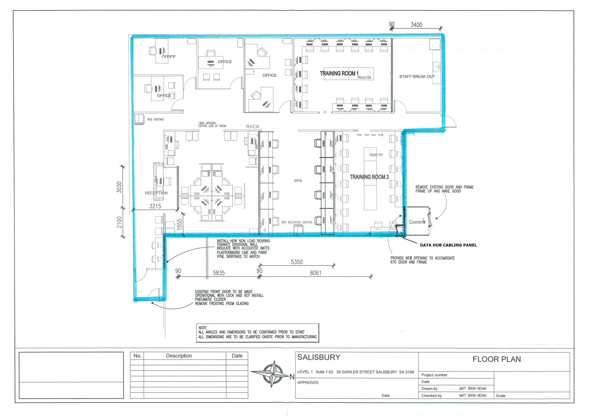
The Nett lettable area available is approximately 319sqm as outlined in blue on the attached plan. The premises are let inclusive of extensive partitioning, kitchenette, security system, data cabling and lift access is provided.
Exclusive use of 5 on-site car parking bays can be allocated.
Tenancy 2 on Level 1 is available for letting from June 2023, and flexible Lease terms are available.
Inspection strictly by appointment.
For further details contact Sole Leasing Agents, George Zogopoulos, 8410 6444 or 0412 824 278.
The Nett lettable area available is approximately 319sqm as outlined in blue on the attached plan. The premises are let inclusive of extensive partitioning, kitchenette, security system, data cabling and lift access is provided.
Exclusive use of 5 on-site car parking bays can be allocated.
Tenancy 2 on Level 1 is available for letting from June 2023, and flexible Lease terms are available.
Inspection strictly by appointment.
For further details contact Sole Leasing Agents, George Zogopoulos, 8410 6444 or 0412 824 278.
Property Info
Municipality
Salisbury
Thank You
Your enquiry has been sent!
Enquiry is Failed
Please contact your administrator.