EXPRESSION OF INTEREST Closes 18th May 2023
14-16 Barndioota Road, Salisbury Plain, SA 5109
Leased Investment with Value Add & Development Potential
***E.O.I. closes Thursday 18th May 2023 at 4:00pm***
Located within the fast developing industrial precinct of Salisbury Plains, only 20 kilometers North of Adelaide CBD and easily accessed by Main North Road via Saints Road and Stanbel Road, lies a fantastic commercial opportunity that ticks all the boxes.
- Secure low-risk returns (tick)
- Large allotment land-holding (tick)
- Ability to value-add and increase rental income (tick)
- Strong redevelopment potential and warehouse demand - stpc (tick)
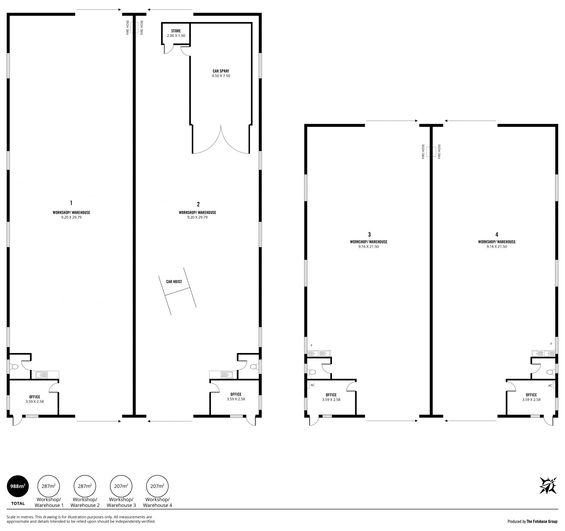
Improvements to the property include 4 self-contained warehouses with a combined total building area of 988sqm. The two larger warehouses at 287sqm, and the two slightly smaller at 207sqm are occupied by a tenancy-mix that has been in place for many years with great success, it's always delivered a steady rental income stream. The current passing rental is $89,564.57 + all recoverable outgoings (excl. GST) which is very modest upon comparison with market rents being achieved. The opportunity to improve the income stream in numerous ways allows an astute owner the ability to value-add. For a copy of the tenancy schedule and more details regarding the leases please " contact Agent" Nic and request a copy of the Information Memorandum.
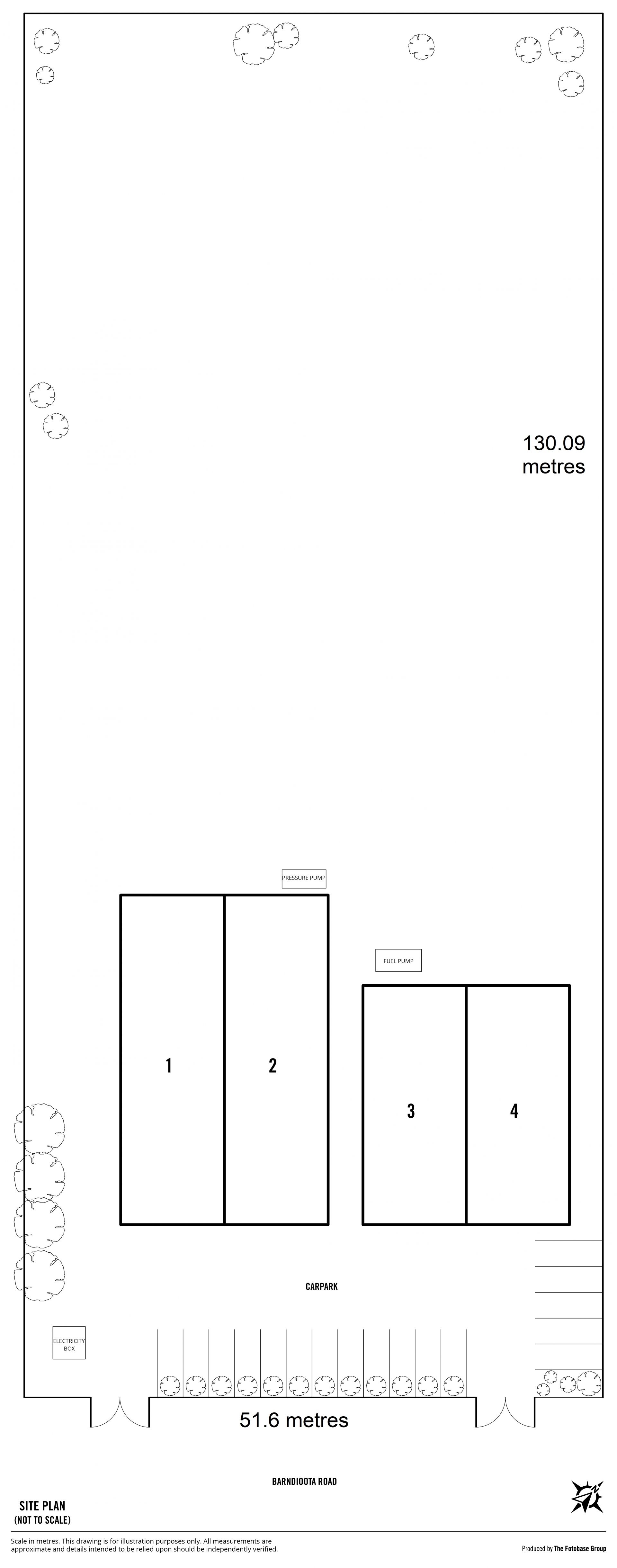
Income aside, the real value of the property is in the land's grand proportions, a 6703sqm allotment zoned Strategic Employment which compliments the increasing demand for industrial warehousing within close proximity to infrastructure and SA's major transport networks. The surrounding successful industrial developments and low vacancy rates only provides confidence that great returns are being achieved from flexible-use warehousing developments that can cater for all sorts of uses; including storage, transport, consulting rooms, light industry, motor vehicle related businesses, offices, service trade premises, wholesale warehouse and other uses as envisaged under the zone (all subject to planning consent).
Features to note include:
- Land Size: 6,703sqm
- Zone: Strategic Employment
- Total Building Area: 988sqm - Warehouse 1: 287sqm - Warehouse 2: 287sqm - Warehouse 3: 207sqm - Warehouse 4: 207sqm
- Total (Net) Rental $89,564.57 p.a. + GST
Note: Redevelopment provisions are contained within the lease agreements.
E.O.I. closes Thursday 18th May 2023 at 4:00pm
Please request a copy of our Information Memorandum and attached E.O.I submission form.
Property Code: 2366
Located within the fast developing industrial precinct of Salisbury Plains, only 20 kilometers North of Adelaide CBD and easily accessed by Main North Road via Saints Road and Stanbel Road, lies a fantastic commercial opportunity that ticks all the boxes.
- Secure low-risk returns (tick)
- Large allotment land-holding (tick)
- Ability to value-add and increase rental income (tick)
- Strong redevelopment potential and warehouse demand - stpc (tick)
Improvements to the property include 4 self-contained warehouses with a combined total building area of 988sqm. The two larger warehouses at 287sqm, and the two slightly smaller at 207sqm are occupied by a tenancy-mix that has been in place for many years with great success, it's always delivered a steady rental income stream. The current passing rental is $89,564.57 + all recoverable outgoings (excl. GST) which is very modest upon comparison with market rents being achieved. The opportunity to improve the income stream in numerous ways allows an astute owner the ability to value-add. For a copy of the tenancy schedule and more details regarding the leases please " contact Agent" Nic and request a copy of the Information Memorandum.
Income aside, the real value of the property is in the land's grand proportions, a 6703sqm allotment zoned Strategic Employment which compliments the increasing demand for industrial warehousing within close proximity to infrastructure and SA's major transport networks. The surrounding successful industrial developments and low vacancy rates only provides confidence that great returns are being achieved from flexible-use warehousing developments that can cater for all sorts of uses; including storage, transport, consulting rooms, light industry, motor vehicle related businesses, offices, service trade premises, wholesale warehouse and other uses as envisaged under the zone (all subject to planning consent).
Features to note include:
- Land Size: 6,703sqm
- Zone: Strategic Employment
- Total Building Area: 988sqm - Warehouse 1: 287sqm - Warehouse 2: 287sqm - Warehouse 3: 207sqm - Warehouse 4: 207sqm
- Total (Net) Rental $89,564.57 p.a. + GST
Note: Redevelopment provisions are contained within the lease agreements.
E.O.I. closes Thursday 18th May 2023 at 4:00pm
Please request a copy of our Information Memorandum and attached E.O.I submission form.
Property Code: 2366
Property Info
Municipality
Salisbury Plain
Thank You
Your enquiry has been sent!
Enquiry is Failed
Please contact your administrator.