$3,960 pcm + Outgoings + GST
4, 11 Crown Court, Varsity Lakes, QLD 4227
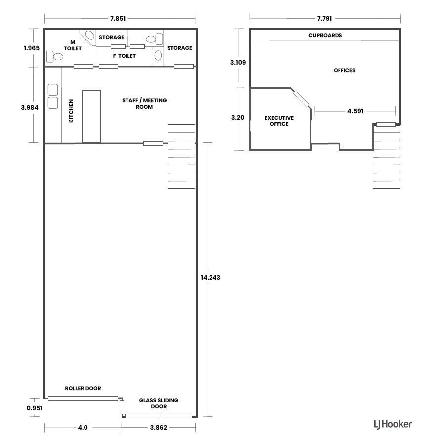
Prime 216sqm* Clearspan Warehouse with Office
We are excited to offer a fantastic opportunity to lease a vacant factory in the highly sought-after Varsity Lakes area. This property is located in a quiet cul de sac and boasts high roller doors, an insulated roof, and four onsite car parks.
The clear-span warehouse area provides ample space for storage and manufacturing, with office space over two levels at the rear of the property. All offices are fully air-conditioned, providing a comfortable working environment for you and your team.
The property also features separate male and female bathrooms, a full kitchen with a dishwasher, and a key pad entry to the front glass door. This factory is perfect for businesses that require space, storage, and comfort all in one location.
Don't miss out on this rare opportunity to lease a property in such a prime location. Contact us now to arrange a viewing and secure your lease on this fantastic property.
- 216sqm* warehouse with 2 levels of office
- Quiet cul de sac location
- High roller door and insulated roof
- Onsite parking
- Air-conditioned offices
- Renovated M/F bathrooms
- Keypad entry
- Ample space and storage
- Prime location close to the M1 interchange
For more information or to arrange your inspection, please contact listing agent Tara Imlach on 0452 418 343.
*Approximately
Disclaimer:
All information (including but not limited to the property area, floor size, price, address and general property description) is provided as a convenience to you, and has been provided to LJ Hooker by third parties. LJ Hooker is unable to definitively confirm whether the information listed is correct or 100% accurate. LJ Hooker does not accept any liability (direct or indirect) for any injury, loss, claim, damage or any incidental or consequential damages, including but not limited to lost profits or savings, arising out of or in any way connected with the use of any information, or any error, omission or defect in the information, contained on the Website. Information contained on the Website should not be relied upon and you should make your own enquiries and seek legal advice in respect of any property on the Website. Prices displayed on the Website are current at the time of issue, but may change.
The clear-span warehouse area provides ample space for storage and manufacturing, with office space over two levels at the rear of the property. All offices are fully air-conditioned, providing a comfortable working environment for you and your team.
The property also features separate male and female bathrooms, a full kitchen with a dishwasher, and a key pad entry to the front glass door. This factory is perfect for businesses that require space, storage, and comfort all in one location.
Don't miss out on this rare opportunity to lease a property in such a prime location. Contact us now to arrange a viewing and secure your lease on this fantastic property.
- 216sqm* warehouse with 2 levels of office
- Quiet cul de sac location
- High roller door and insulated roof
- Onsite parking
- Air-conditioned offices
- Renovated M/F bathrooms
- Keypad entry
- Ample space and storage
- Prime location close to the M1 interchange
For more information or to arrange your inspection, please contact listing agent Tara Imlach on 0452 418 343.
*Approximately
Disclaimer:
All information (including but not limited to the property area, floor size, price, address and general property description) is provided as a convenience to you, and has been provided to LJ Hooker by third parties. LJ Hooker is unable to definitively confirm whether the information listed is correct or 100% accurate. LJ Hooker does not accept any liability (direct or indirect) for any injury, loss, claim, damage or any incidental or consequential damages, including but not limited to lost profits or savings, arising out of or in any way connected with the use of any information, or any error, omission or defect in the information, contained on the Website. Information contained on the Website should not be relied upon and you should make your own enquiries and seek legal advice in respect of any property on the Website. Prices displayed on the Website are current at the time of issue, but may change.
Property Info
Municipality
Varsity Lakes
Thank You
Your enquiry has been sent!
Enquiry is Failed
Please contact your administrator.