Contact Agent
282-290 Oxford Street, Bondi Junction, NSW 2022
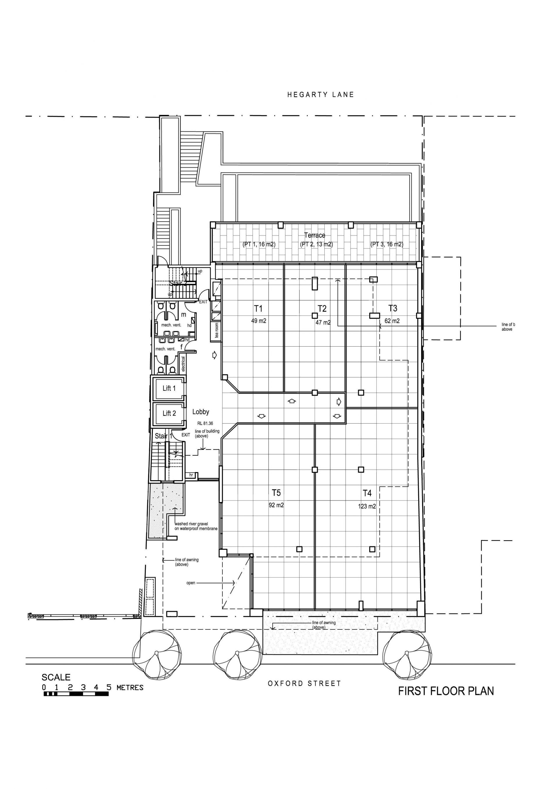
Modern, Fitted-Out Offices with Balconies - 51 sqm - 70 sqm
HillCo Property Group is pleased to offer 282-290 Oxford Street, Bondi Junction to the market for Lease. We have a range of different sizes available that can be tailored to suit requirements.
Remaining Suites:
Suites 4.01 & 4.02 - 130 sqm, plus exclusive outdoor terrace
Modern fit-out including reception/waiting area, large boardroom, three (3) executive offices and open plan work space suitable for 10-12 staff
Suite 5.02 - 128 sqm, plus generous outdoor balcony
Quality fit-out including boardroom, meeting room, data room, large open plan workspace, and dry-kitchenette/break out area
Features:
+ All suites feature great natural light and access to private or shared outdoor areas
+ Independently controlled ducted air-conditioning throughout
+ Range of fitted options, or open plan
+ Shared bathrooms & kitchenette's on all floors
+ Suits professional services, medical or allied health uses
+ Shower facilities in the building
+ Ample secure parking available
282-290 Oxford Street is located at the gateway to Bondi Junction, walking distance to all local amenities including Bus/Rail Interchange, Westfield Shopping Centre & Centennial Park.
Remaining Suites:
Suites 4.01 & 4.02 - 130 sqm, plus exclusive outdoor terrace
Modern fit-out including reception/waiting area, large boardroom, three (3) executive offices and open plan work space suitable for 10-12 staff
Suite 5.02 - 128 sqm, plus generous outdoor balcony
Quality fit-out including boardroom, meeting room, data room, large open plan workspace, and dry-kitchenette/break out area
Features:
+ All suites feature great natural light and access to private or shared outdoor areas
+ Independently controlled ducted air-conditioning throughout
+ Range of fitted options, or open plan
+ Shared bathrooms & kitchenette's on all floors
+ Suits professional services, medical or allied health uses
+ Shower facilities in the building
+ Ample secure parking available
282-290 Oxford Street is located at the gateway to Bondi Junction, walking distance to all local amenities including Bus/Rail Interchange, Westfield Shopping Centre & Centennial Park.
Property Info
Municipality
Bondi Junction
Thank You
Your enquiry has been sent!
Enquiry is Failed
Please contact your administrator.