SOLD
20 Princes Highway, Bodalla, NSW 2545
“The Big Cheese” Bodalla – South Coast, Tourism Town NSW
Excellent exposure – approx. 500 m frontage Princes Highway. Approx. 5,000 cars per day traffic.
Easy access to: 15mins Tuross Head, 25 mins Moruya, 25 mins Narooma, 35 mins Tilba Tilba, 45 mins Batemans Bay.
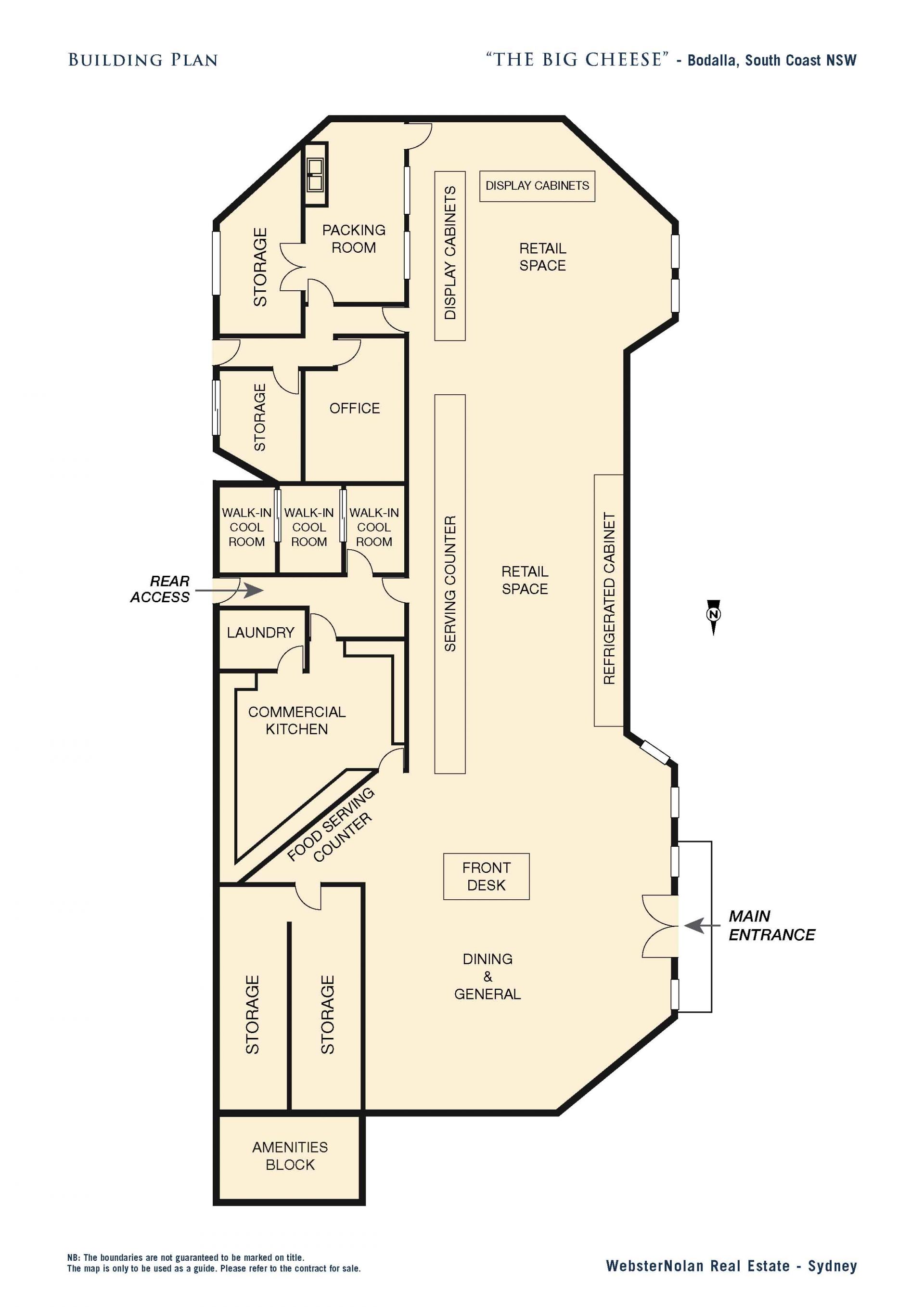
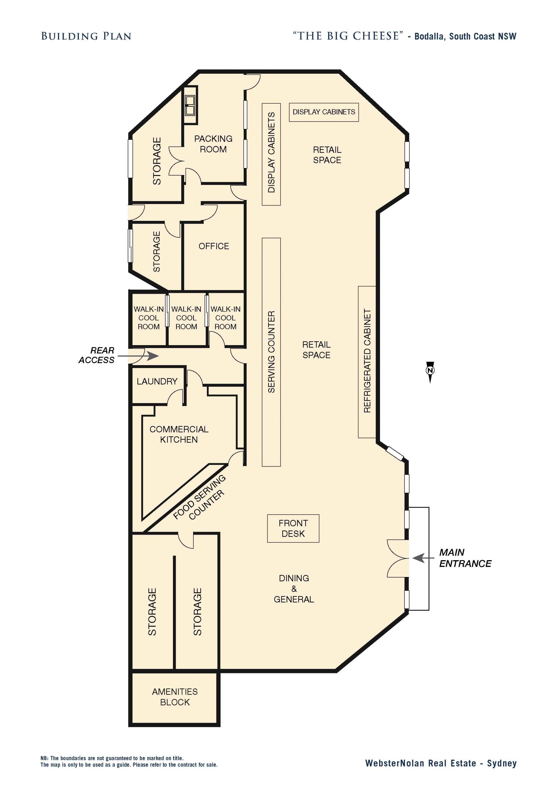
Substantial 640m² multi-purpose commercial building. Includes a previous internal fit out as a Tourism food outlet. Town water and town sewerage connected.
Spacious sealed car park. Approx 70 car spaces.
“The Big Cheese” is an iconic South Coast commercial building.
Solidly built, this whole package which offers a wide range of uses, is now looking for the astute investor/operator to create its future business destination. *Subject to Council Approval
Detailed Information Memorandum available.
Easy access to: 15mins Tuross Head, 25 mins Moruya, 25 mins Narooma, 35 mins Tilba Tilba, 45 mins Batemans Bay.
Substantial 640m² multi-purpose commercial building. Includes a previous internal fit out as a Tourism food outlet. Town water and town sewerage connected.
Spacious sealed car park. Approx 70 car spaces.
“The Big Cheese” is an iconic South Coast commercial building.
Solidly built, this whole package which offers a wide range of uses, is now looking for the astute investor/operator to create its future business destination. *Subject to Council Approval
Detailed Information Memorandum available.
Property Info
Municipality
Bodalla
- 70
- 4 Sqm
Whale Coast Realty Narooma
34 Princes Highway
Narooma, NSW 2546
Tel: +61244762699
John Murray
Thank You
Your enquiry has been sent!
Enquiry is Failed
Please contact your administrator.