SOLD
1275 - 1277 South Road, St Marys, SA 5042
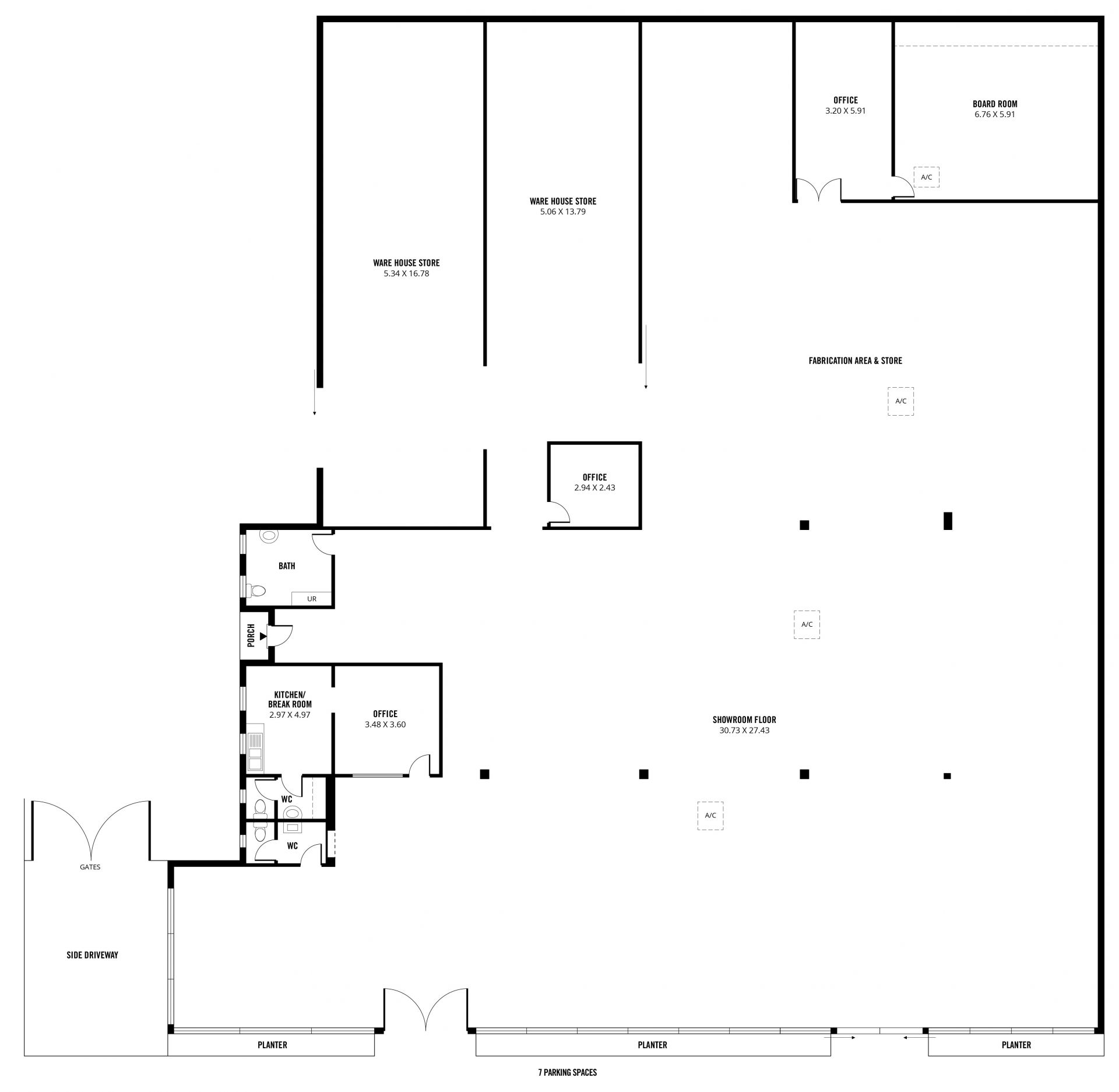
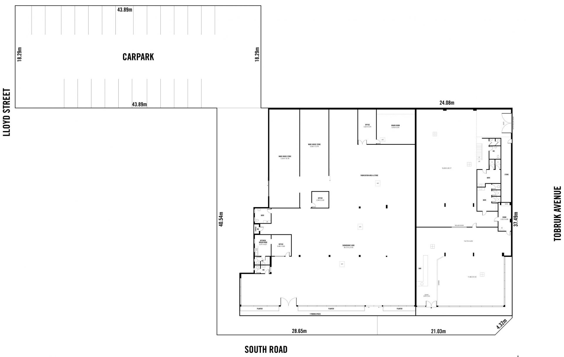
PRIME MAIN ROAD COMMERCIAL HOLDING OF 2,935 SQM
- Outstanding development potential
- 3 street frontages
- Usable improvements of 1,414 SQM
- Significant holding income
- Zoned Employment
For further details contact our office on 08 8223 2366 or [email protected]
RLA 510
- 3 street frontages
- Usable improvements of 1,414 SQM
- Significant holding income
- Zoned Employment
For further details contact our office on 08 8223 2366 or [email protected]
RLA 510
Property Info
Municipality
St Marys
Thank You
Your enquiry has been sent!
Enquiry is Failed
Please contact your administrator.