$450,000
41 Crutchett Road, Moonta, SA 5558
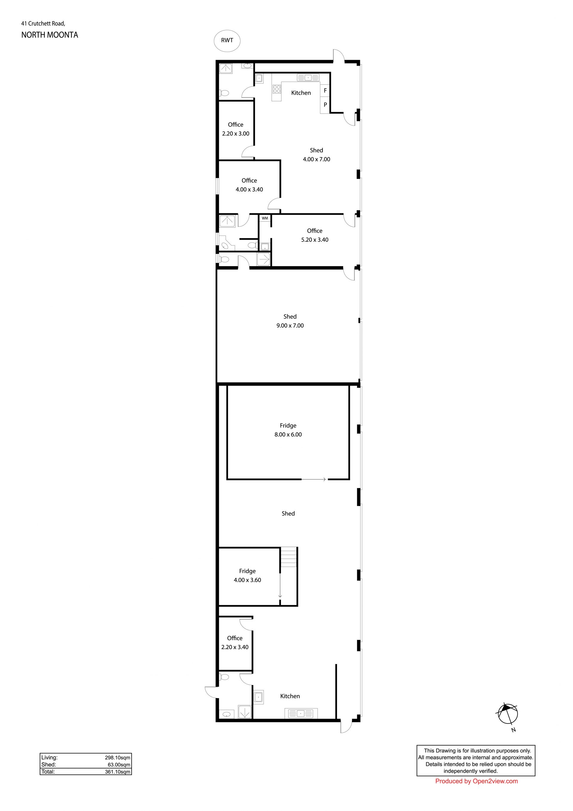
Huge Shed with Offices
Situated on a huge 2,947m2 allotment within Moonta's industrial outskirts is this unique commercial opportunity with income from day 1! The front half of the shed is currently tenanted while the rear half has been perfectly set up for use as office space or for an on-site manager. The shed itself is 9 metres wide by 42 metres long (internal division at 21M ) with 12 doors 3.5m wide by 3.95m tall. There is office infrastructure with bathroom and kitchenette facilities in both halves, three phase power connected and good street frontage onto Crutchett Road. The shed area is fully fenced, with plenty of vacant land out the back for future infrastructure if approved. Zoned Strategic Employment (Z5720) - SE , Contact David Bussenschutt on 0429692511 or call into the Ray White office for further information.
Property Info
Municipality
Moonta
Thank You
Your enquiry has been sent!
Enquiry is Failed
Please contact your administrator.