$1.55 million
111 Nubeena Road, Taranna, TAS 7180
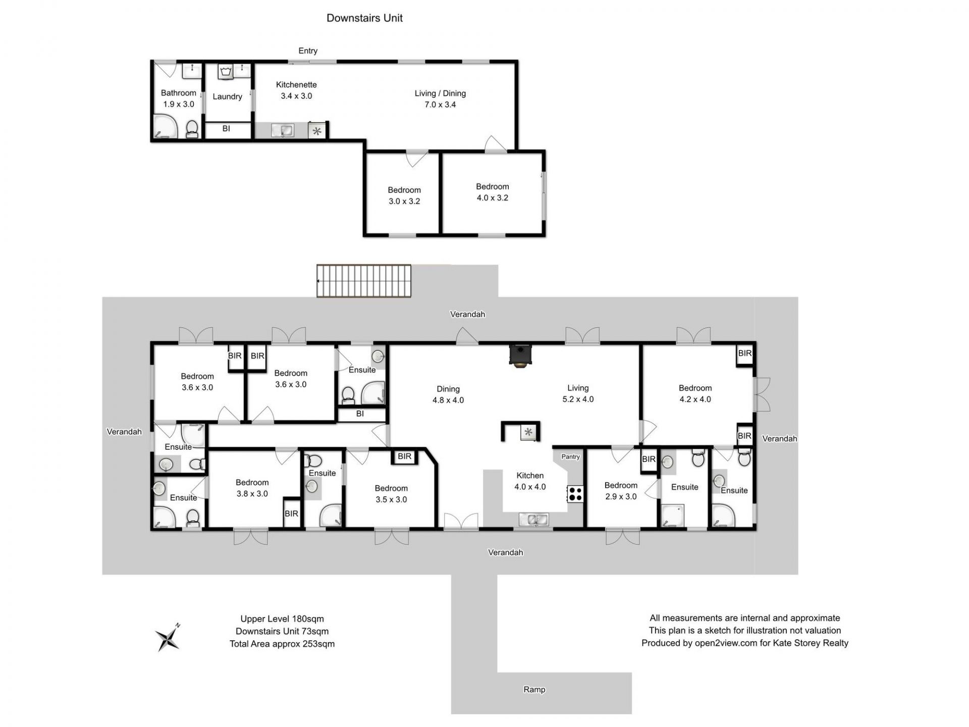
6 bedrooms all with their own bathroom ideal for small group accommodation on the Tasman Peninsula on approx. 41 acres with Sea views
This unique Queenslander styled residence was purpose built as a B&B and holds a 1B license which allows rental of the accommodation. Set on 45 acres on Sympathy Hill in Taranna, Tasmania it has multi-million-dollar sea views with expansive vistas overlooking Newmans Beach and Norfolk Bay towards Mt Wellington.
This property offers many features and has a schedule of rental dates booked through to spring 2023. All future bookings will be handed over with the sale of the property. The sale also comes with a purpose-built website (https://www.threecapesandtasmanlodge.com.au/) which can be further activated to promote booking potential.
The main house features 6 bedrooms, each with its own ensuite offering comfortable accommodation for 11 guests. Three bedrooms have stunning views across the Tasman coast and three bedrooms face the beautiful private bushland setting. All bedrooms feature double doors that open onto the large wrap around verandah. The main house also features 2 living areas with dining space for 12 people, spacious Tasmanian oak kitchen with loads of cupboards and large pantry. The property will be sold with all furniture including fully furnished bedrooms & linen, dining table, lounges and more.
Located underneath the main house is a self-contained and newly built accommodation area which includes 2 bedrooms, 1 bathroom, laundry, kitchenette, dining and lounge. This area is ideal for tour guides, hosts, or could be used by caretakers, or function as owner accommodation. The opportunities are endless!
There is ample room for car parking undercover also. A mini-van and trailer, popular for use by tour companies has parking at the top of the drive way with plenty of room to turn around. There is also a tool shed and wood storage underneath the house.
A super large 130,000 litre rainwater tank with newly installed pump supplies the house. There are 3 dams in front of the property and water taps service the bush garden. Access to the house is from a secluded private driveway ..... and paradise awaits up the hill.
The property is turn key to make you money and well serviced with reliable cleaner, gardener, wood supply, plumper and electrician.
Kate Storey Realty has obtained all information in this document from sources considered to be reliable, however we cannot guarantee its accuracy. Accordingly, all interested parties should make their own enquiries to verify this information. All measurements are approximate only.
This property offers many features and has a schedule of rental dates booked through to spring 2023. All future bookings will be handed over with the sale of the property. The sale also comes with a purpose-built website (https://www.threecapesandtasmanlodge.com.au/) which can be further activated to promote booking potential.
The main house features 6 bedrooms, each with its own ensuite offering comfortable accommodation for 11 guests. Three bedrooms have stunning views across the Tasman coast and three bedrooms face the beautiful private bushland setting. All bedrooms feature double doors that open onto the large wrap around verandah. The main house also features 2 living areas with dining space for 12 people, spacious Tasmanian oak kitchen with loads of cupboards and large pantry. The property will be sold with all furniture including fully furnished bedrooms & linen, dining table, lounges and more.
Located underneath the main house is a self-contained and newly built accommodation area which includes 2 bedrooms, 1 bathroom, laundry, kitchenette, dining and lounge. This area is ideal for tour guides, hosts, or could be used by caretakers, or function as owner accommodation. The opportunities are endless!
There is ample room for car parking undercover also. A mini-van and trailer, popular for use by tour companies has parking at the top of the drive way with plenty of room to turn around. There is also a tool shed and wood storage underneath the house.
A super large 130,000 litre rainwater tank with newly installed pump supplies the house. There are 3 dams in front of the property and water taps service the bush garden. Access to the house is from a secluded private driveway ..... and paradise awaits up the hill.
The property is turn key to make you money and well serviced with reliable cleaner, gardener, wood supply, plumper and electrician.
Kate Storey Realty has obtained all information in this document from sources considered to be reliable, however we cannot guarantee its accuracy. Accordingly, all interested parties should make their own enquiries to verify this information. All measurements are approximate only.
Property Info
Municipality
Taranna
Thank You
Your enquiry has been sent!
Enquiry is Failed
Please contact your administrator.