$1,310,000
74 Brighton Road, Glenelg East, SA 5045
COMMANDING MAIN ROAD FRONTAGE!
Absolutely outstanding opportunity to purchase in the highly sought after suburb of Glenelg.
This tenanted property boasts value and convenience with prime main road exposure. Well suited to owner-occupiers or an investor looking to begin or expand their portfolio.
Perfectly positioned close to all amenities and the heart of the Bay.
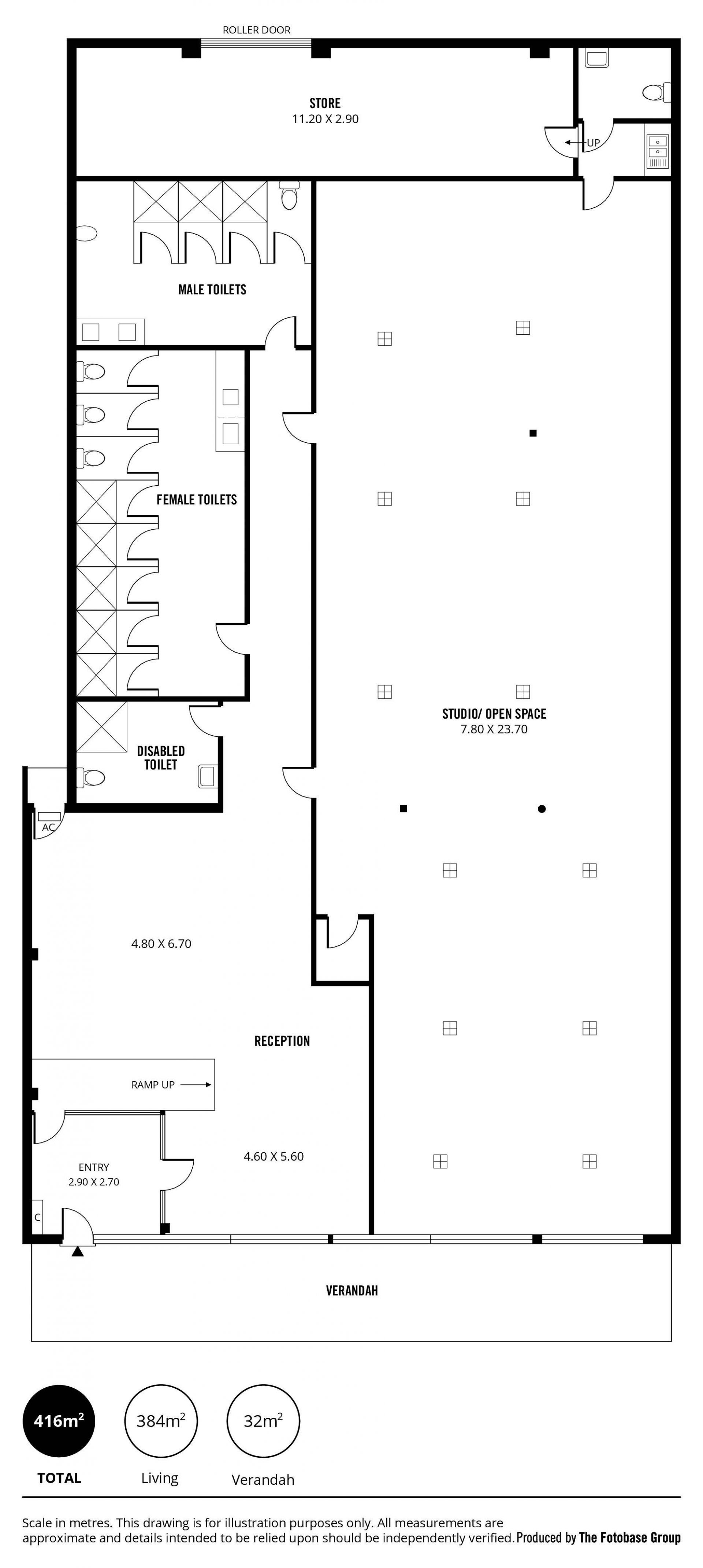
The total area of the property is approximately 660m2 with approximately 373m2 of multi-purpose lettable floor space.
Onsite parking for up to 7 vehicles (access via rear lane) including one disabled.
The property is currently being used a Bikram yoga studio and consists of a spacious reception area, huge open studio space, modern male/female toilets with showers. There is also a disabled toilet including a shower.
In addition there are staff amenities with kitchenette to the rear and large storage area with roller door access to the car park.
CURRENT TENANCY DETAILS:
Leased to: Bikram Yoga Studio
Lease: 01/11/2019 – 31/10/2024 together with one right of renewal for a further five (5) years thereafter.
Base Lease Rental: $81,487.80 pa + GST
Rent Reviews: Annually from 01/11/21 @ CPI
Outgoings: Tenant is responsible for 100% of Council, SA Water, ESL, Administration fee and Building Insurance
• Please note, the tenant is on reduced rental payments of $57,000 pa + GST. The property is also being advertised for re-rental @ $83,000 + GST.
Council Rates: $2,652.15 per annum
SA Water: $270.28 per quarter
Building Insurance: $2,895.00 per annum
ESL: $ N/A
Please Note: Council restrictions for hours of operation being 7am - 9pm Mon -Fri & 8am - 5pm Sat & Sun.
TAPLIN GROUP OF COMPANIES - RLA 1836
This tenanted property boasts value and convenience with prime main road exposure. Well suited to owner-occupiers or an investor looking to begin or expand their portfolio.
Perfectly positioned close to all amenities and the heart of the Bay.
The total area of the property is approximately 660m2 with approximately 373m2 of multi-purpose lettable floor space.
Onsite parking for up to 7 vehicles (access via rear lane) including one disabled.
The property is currently being used a Bikram yoga studio and consists of a spacious reception area, huge open studio space, modern male/female toilets with showers. There is also a disabled toilet including a shower.
In addition there are staff amenities with kitchenette to the rear and large storage area with roller door access to the car park.
CURRENT TENANCY DETAILS:
Leased to: Bikram Yoga Studio
Lease: 01/11/2019 – 31/10/2024 together with one right of renewal for a further five (5) years thereafter.
Base Lease Rental: $81,487.80 pa + GST
Rent Reviews: Annually from 01/11/21 @ CPI
Outgoings: Tenant is responsible for 100% of Council, SA Water, ESL, Administration fee and Building Insurance
• Please note, the tenant is on reduced rental payments of $57,000 pa + GST. The property is also being advertised for re-rental @ $83,000 + GST.
Council Rates: $2,652.15 per annum
SA Water: $270.28 per quarter
Building Insurance: $2,895.00 per annum
ESL: $ N/A
Please Note: Council restrictions for hours of operation being 7am - 9pm Mon -Fri & 8am - 5pm Sat & Sun.
TAPLIN GROUP OF COMPANIES - RLA 1836
Property Info
Municipality
Glenelg East
Thank You
Your enquiry has been sent!
Enquiry is Failed
Please contact your administrator.