EXPRESSION OF INTEREST
29 Grey Street, Clarence Town, NSW 2321
DA APROVED READY TO BUILD 3 NEW RETAIL SHOPS
Clarence Town is a major growth area that is only 25 minutes to the city of Maitland and 45 mins to Newcastle
With the Williamtown RAAF Base &
Newcastle Airport only 30 mins away this has made Clarence Town as a great location to invest in.
With a boom in country lifestyle living , families are locating to regional areas and with a short drive to work, this is put a demand on services.
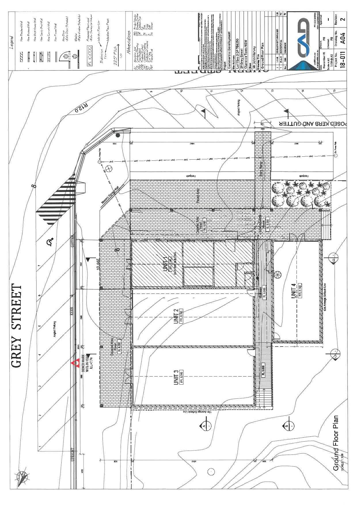
Prime location in the centre of the main street opposite new medical centre
Opportunity for flexible investment ,.
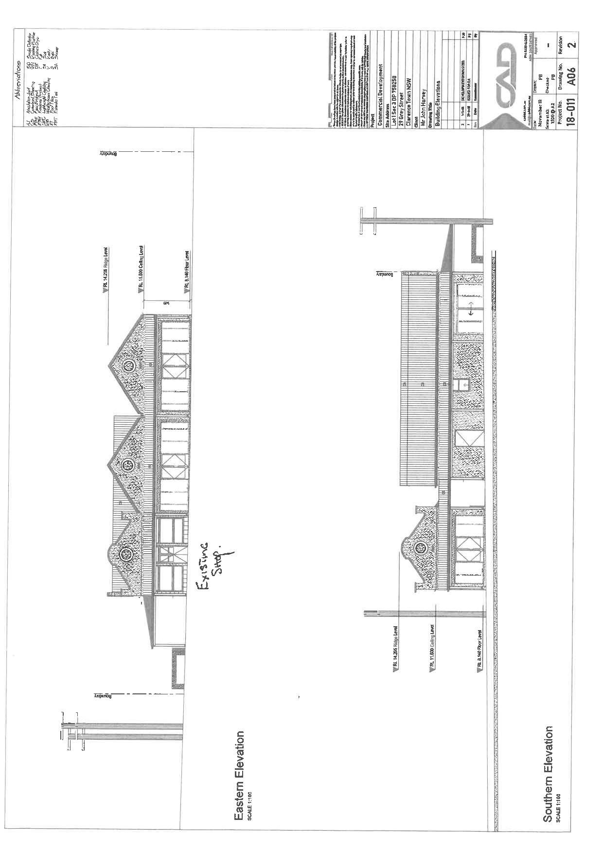
Currently DA approved 3 new retail shops with CC Ready to start works
New tenant giving income return from original shop
Clarence Town has a demand for new commercial space secure a tenant prior to construction or sell off the plan
OPTIONS
Do nothing with rent income and capital growth
Potential subdivision into small blocks having 2 street frontages
DA approved with CC 3 new shops
Subject to council approval 2 extra retail shops total 5 plus original tenanted shop
Stage development within your Budget
Highly recommend looking at this opportunity
This information has been provided to us by third parties and we do not accept responsibility for its accuracy. You should make your own enquiries and check the information so as to determine whether or not this information is in fact accurate. You must make your own assessment and obtain professional advice if necessary.
With the Williamtown RAAF Base &
Newcastle Airport only 30 mins away this has made Clarence Town as a great location to invest in.
With a boom in country lifestyle living , families are locating to regional areas and with a short drive to work, this is put a demand on services.
Prime location in the centre of the main street opposite new medical centre
Opportunity for flexible investment ,.
Currently DA approved 3 new retail shops with CC Ready to start works
New tenant giving income return from original shop
Clarence Town has a demand for new commercial space secure a tenant prior to construction or sell off the plan
OPTIONS
Do nothing with rent income and capital growth
Potential subdivision into small blocks having 2 street frontages
DA approved with CC 3 new shops
Subject to council approval 2 extra retail shops total 5 plus original tenanted shop
Stage development within your Budget
Highly recommend looking at this opportunity
This information has been provided to us by third parties and we do not accept responsibility for its accuracy. You should make your own enquiries and check the information so as to determine whether or not this information is in fact accurate. You must make your own assessment and obtain professional advice if necessary.
Property Info
Municipality
Clarence Town
NEARBY PROPERTIES
Thank You
Your enquiry has been sent!
Enquiry is Failed
Please contact your administrator.