SOLD
118 Greenhill Road, Unley, SA 5061
"GREENHILL HOUSE", DESIRABLE 2 LEVEL PURPOSE BUILT OFFICE COMPLEX WITH ASSOCIATED UNDERCOVER PARKING - WELL POSITIONED FOR FUTURE GROWTH
'GREENHILL HOUSE', offers opportunity to enter this desirable and sought after segment of the Commercial Market.
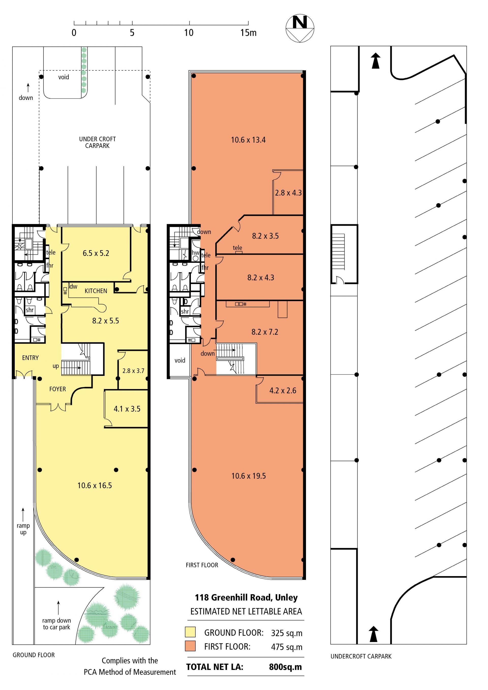
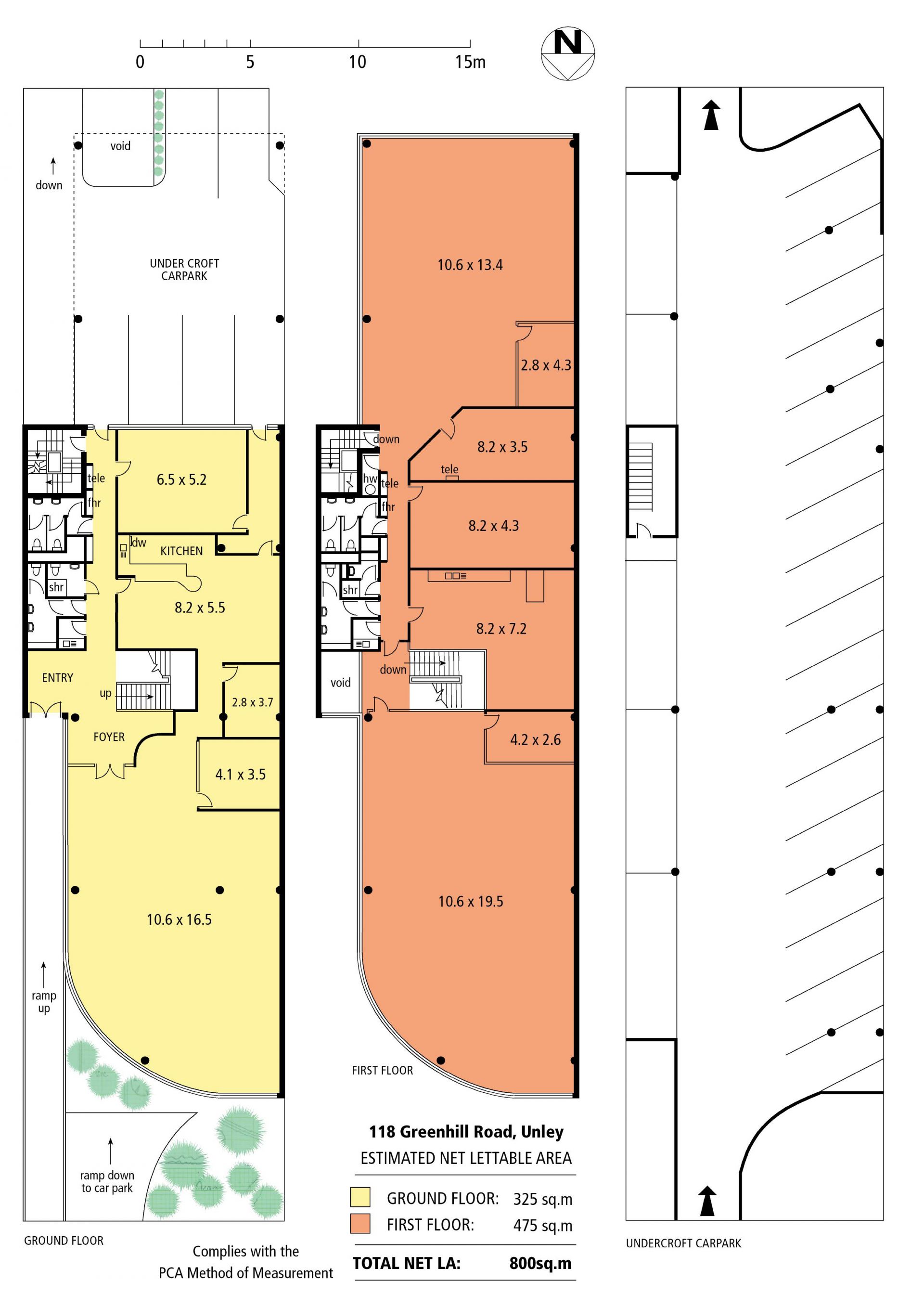
The property which has a lettable (NLA) of 800 sqm, if let on a single tenant basis, with 30 undercover car parks offers a quality stand-alone building constructed circa 1986, with modern amenities and high level fit-out which meets the demands and needs of today's Tenants.
The office space is currently configured for single Tenant occupation with extensive staff amenities at both levels. The building however, offers the flexibility for layout to be rearranged to provide multiple Tenancy areas at both levels. The building was refurbished in 2018 to include new air conditioning plant, new led lighting and downlights, upgrading of all toilet amenities, and construction of new kitchen amenities.
The whole of the property is leased to TeamViewer, Pty Ltd, and existing Tenant will be vacating as at 31.01.2022.
Current rental payable is $256,018.96 PA + GST, and Net passing rent as at 01.06.21 (after allowing for Land Tax Single Holding) is $247,580.00 PA + GST.
The property is suited to a long term Investor, or intending Owner/Occupier who can occupy the property (or portion thereof), and lease out balance generating an income stream.
The property is offered for Sale by Private Treaty negotiation at price in the range of $3.5 Million, and existing lease in place will be Assigned to Purchaser at completion of Settlement.
Any on-site inspection is strictly by prior arrangement with the Sole Selling Agents.
For further details contact the Sole Selling Agents, George Zogopoulos, 8410 6444 or 0412 824 278.
The property which has a lettable (NLA) of 800 sqm, if let on a single tenant basis, with 30 undercover car parks offers a quality stand-alone building constructed circa 1986, with modern amenities and high level fit-out which meets the demands and needs of today's Tenants.
The office space is currently configured for single Tenant occupation with extensive staff amenities at both levels. The building however, offers the flexibility for layout to be rearranged to provide multiple Tenancy areas at both levels. The building was refurbished in 2018 to include new air conditioning plant, new led lighting and downlights, upgrading of all toilet amenities, and construction of new kitchen amenities.
The whole of the property is leased to TeamViewer, Pty Ltd, and existing Tenant will be vacating as at 31.01.2022.
Current rental payable is $256,018.96 PA + GST, and Net passing rent as at 01.06.21 (after allowing for Land Tax Single Holding) is $247,580.00 PA + GST.
The property is suited to a long term Investor, or intending Owner/Occupier who can occupy the property (or portion thereof), and lease out balance generating an income stream.
The property is offered for Sale by Private Treaty negotiation at price in the range of $3.5 Million, and existing lease in place will be Assigned to Purchaser at completion of Settlement.
Any on-site inspection is strictly by prior arrangement with the Sole Selling Agents.
For further details contact the Sole Selling Agents, George Zogopoulos, 8410 6444 or 0412 824 278.
Property Info
Municipality
Unley
NEARBY PROPERTIES
Thank You
Your enquiry has been sent!
Enquiry is Failed
Please contact your administrator.