Contact Agent
2, 34 Lower Road, New Norfolk, TAS 7140
Unlock the Potential of a Unique Investment Opportunity
Set in the charming town of New Norfolk, just 32 km northwest of Hobart and a short 24 km from the iconic MONA museum, this extraordinary property offers a rare chance to transform a piece of Tasmanian history into a lucrative modern venture.
Originally constructed in 1961 as nurses’ quarters for the former Royal Derwent Hospital, the property combines heritage charm with untapped potential. Spanning an expansive 8510 square metres, it is ready to be reimagined as a thriving investment opportunity.
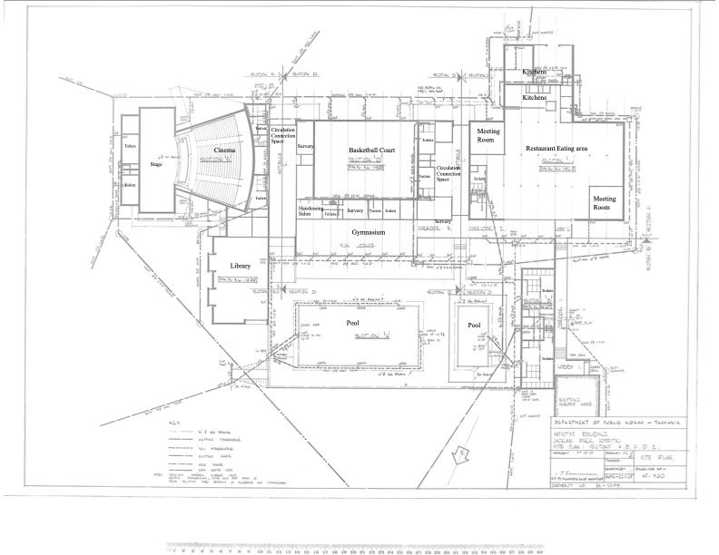
Features that inspire innovation include:
- A pool precinct with multiple changing facilities.
- A fully equipped cinema and back stage areas for entertainment or events.
- An indoor basketball court for recreational or fitness-focused purposes.
- A commercial kitchen and 300-seat dining area, ideal for hospitality ventures.
- Gymnasium space for wellness or health-focused enterprises.
- Multiple meeting rooms, circulation spaces, and ancillary kitchens are available for flexible use.
- Ample storage for operational efficiency.
The site offers expansive indoor amenities and the opportunity for vertical expansion (STCA), enabling investors to dream big. Whether you envision a boutique hotel, luxury apartments, a mixed-use development, or a wellness retreat, this property is your blank canvas with plenty of space to let your mind run wild!
With the scope to operate its current amenities as standalone or combined businesses, this redevelopment prospect is brimming with possibilities. From hospitality to residential, the only limit is your imagination.
Memorandum - https://issuu.com/morerealestatetas/docs/
Please note: As instructed by Mortgagee in Possession
Contact Craig Bellgrove at 0488 013 965 or Leanne Masters at 0408 128 325 for further details or to arrange a viewing.
*Disclaimer: All information provided has been prepared to the best of our knowledge. Buyers are encouraged to conduct independent research to verify details before proceeding with a purchase.*
Originally constructed in 1961 as nurses’ quarters for the former Royal Derwent Hospital, the property combines heritage charm with untapped potential. Spanning an expansive 8510 square metres, it is ready to be reimagined as a thriving investment opportunity.
Features that inspire innovation include:
- A pool precinct with multiple changing facilities.
- A fully equipped cinema and back stage areas for entertainment or events.
- An indoor basketball court for recreational or fitness-focused purposes.
- A commercial kitchen and 300-seat dining area, ideal for hospitality ventures.
- Gymnasium space for wellness or health-focused enterprises.
- Multiple meeting rooms, circulation spaces, and ancillary kitchens are available for flexible use.
- Ample storage for operational efficiency.
The site offers expansive indoor amenities and the opportunity for vertical expansion (STCA), enabling investors to dream big. Whether you envision a boutique hotel, luxury apartments, a mixed-use development, or a wellness retreat, this property is your blank canvas with plenty of space to let your mind run wild!
With the scope to operate its current amenities as standalone or combined businesses, this redevelopment prospect is brimming with possibilities. From hospitality to residential, the only limit is your imagination.
Memorandum - https://issuu.com/morerealestatetas/docs/
Please note: As instructed by Mortgagee in Possession
Contact Craig Bellgrove at 0488 013 965 or Leanne Masters at 0408 128 325 for further details or to arrange a viewing.
*Disclaimer: All information provided has been prepared to the best of our knowledge. Buyers are encouraged to conduct independent research to verify details before proceeding with a purchase.*
Property Info
Municipality
New Norfolk
Thank You
Your enquiry has been sent!
Enquiry is Failed
Please contact your administrator.