$420,000
100 Percy Street, Portland, VIC 3305
Prime Commercial Real Estate
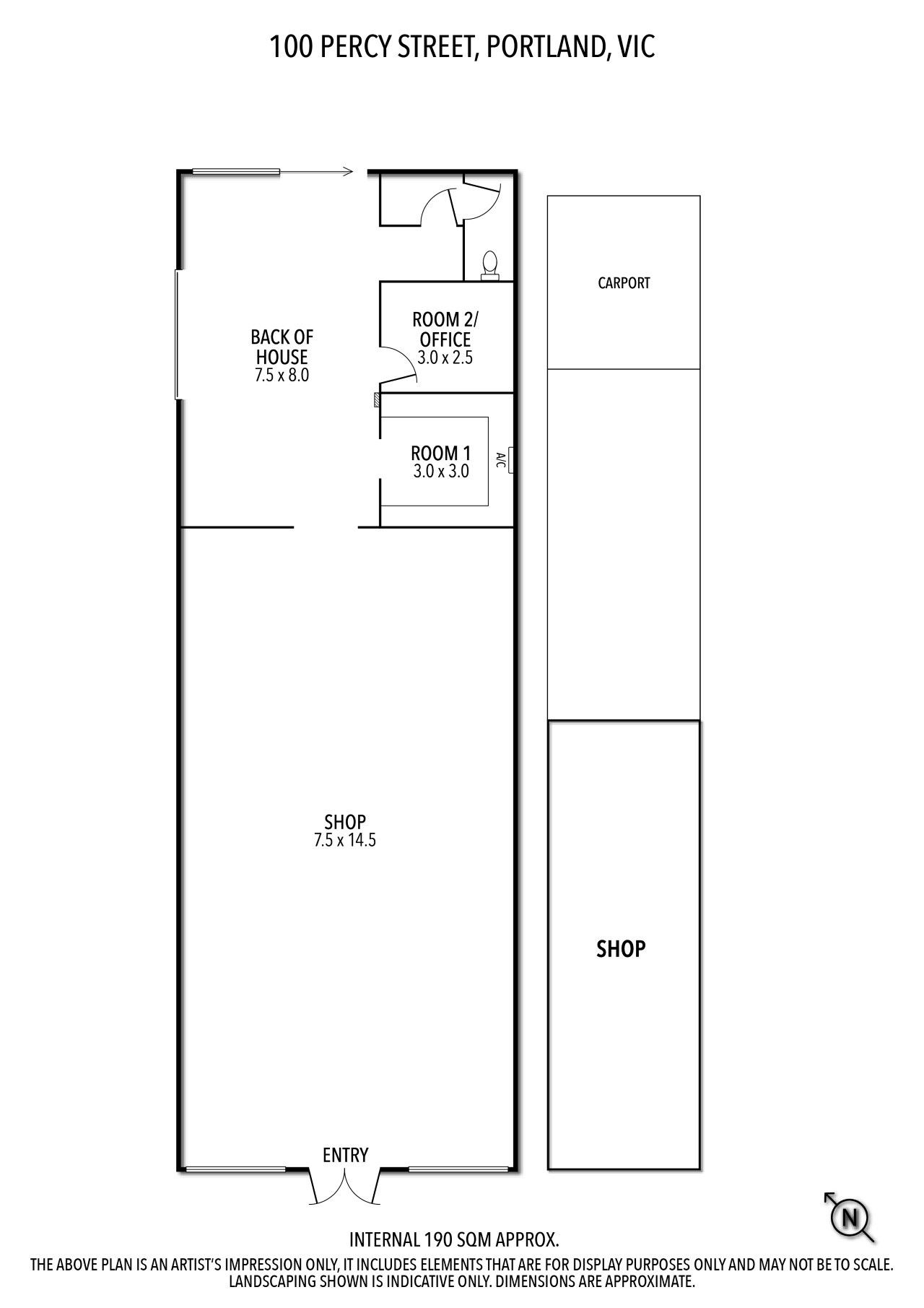
Presenting an excellent investment opportunity, 100 Percy Street in Portland is a prime piece of commercial real estate situated in the heart of the CBD. With a long-standing tenant and demonstrating strong returns, this 525m² allotment includes a 190m² building that features a spacious retail area, two offices, a toilet, and plenty of storage space. Additionally, the property benefits from rear parking facilities, offering convenience for both tenants and customers.
This property is an ideal choice for investors seeking both stability and growth potential. It provides immediate returns while holding promising prospects for future development, subject to council approval. Its strategic location in a bustling commercial area adds to its appeal, making 100 Percy Street an enticing option for those looking to secure a foothold in Portland's thriving commercial landscape.
Whether you're looking to expand your portfolio or start a new venture, this property offers both solid returns and significant potential for future growth. Don't miss out on this unique opportunity.
This property is an ideal choice for investors seeking both stability and growth potential. It provides immediate returns while holding promising prospects for future development, subject to council approval. Its strategic location in a bustling commercial area adds to its appeal, making 100 Percy Street an enticing option for those looking to secure a foothold in Portland's thriving commercial landscape.
Whether you're looking to expand your portfolio or start a new venture, this property offers both solid returns and significant potential for future growth. Don't miss out on this unique opportunity.
Property Info
Municipality
Portland
Thank You
Your enquiry has been sent!
Enquiry is Failed
Please contact your administrator.