$1,370,000
227 Hampshire Road, Sunshine, VIC 3020
Welcome To Sunshine CBD. First Time Offered in 49 Years.
Superbly located on high traffic major retail and services strip moments from the Sunshine Transport Super-Hub planned as the future of Melbourne Airport Rail Link.
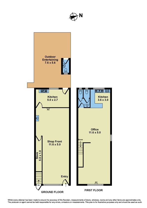
First time offered in 49 years. This double story, dual access shop front is ready for a smart operator to secure a bustling Sunshine CBD address. Alternatively, there is sensational high yielding scope as a first floor office or residential lease and ground floor shop front.
Strategically zoned Activity Centre 1 promoting high density, mixed residential/commercial development in one of the four major National Employment and Innovation Clusters under Plan Melbourne 2017-2050.
_Double Storey Brick Shop
_Separate access and utilities for dual tenancies.
_Ground floor offers a blank canvas with split system, alarm, toilet and court yard.
_Upstairs is currently being utilised as a social club with kitchen and bathroom.
_Building Area 175m2 approx.
_Land area 127m2 approx.
_Zoned Activity Centre Zone - Schedule 1.
_Vacant Possession.
DOUGLAS KAY REAL ESTATE
280 HAMPSHIRE ROAD,
SUNSHINE, VIC, 3020
First time offered in 49 years. This double story, dual access shop front is ready for a smart operator to secure a bustling Sunshine CBD address. Alternatively, there is sensational high yielding scope as a first floor office or residential lease and ground floor shop front.
Strategically zoned Activity Centre 1 promoting high density, mixed residential/commercial development in one of the four major National Employment and Innovation Clusters under Plan Melbourne 2017-2050.
_Double Storey Brick Shop
_Separate access and utilities for dual tenancies.
_Ground floor offers a blank canvas with split system, alarm, toilet and court yard.
_Upstairs is currently being utilised as a social club with kitchen and bathroom.
_Building Area 175m2 approx.
_Land area 127m2 approx.
_Zoned Activity Centre Zone - Schedule 1.
_Vacant Possession.
DOUGLAS KAY REAL ESTATE
280 HAMPSHIRE ROAD,
SUNSHINE, VIC, 3020
Property Info
Municipality
Sunshine
AUCTION
Add to calendar
Thank You
Your enquiry has been sent!
Enquiry is Failed
Please contact your administrator.