Contact Agent
2 David Street, Lalor, VIC 3075
"Prime Retail Site with Approved Permit in High-Growth Area"
Discover a rare opportunity with this permit-approved residential development site situated in a thriving retail hotspot. Embrace the potential for immediate development or explore further re-design possibilities in this high-growth precinct. Ideally positioned in a Residential Growth Zone, this site offers proximity to a wealth of retail and lifestyle amenities. Key features include:
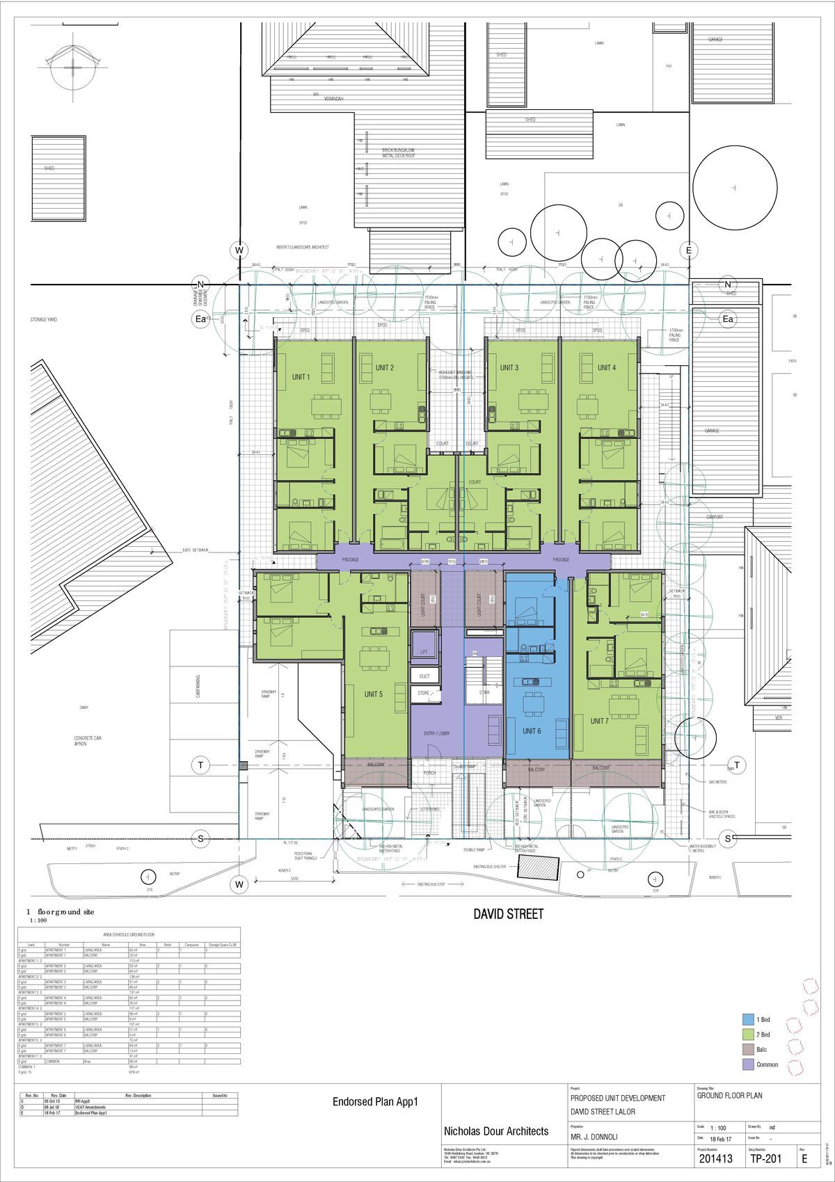
* Strategic 1,262sq m* site in a perfect location
*Approved permit for a premium project featuring 26 spacious apartments
*Thoughtfully designed with an average apartment size of 78sq m*, maximizing natural light
*Zoned Residential Growth Zone 1
*Exceptional location near the vibrant May Road/Station Street retail strips, with Coles & Woolworths just a short walk away
*Close to St Luke’s Primary School, Lalor Primary School, Lalor Secondary College & Peter Lalor Vocational College
*Conveniently within walking distance to Lalor Train Station (500m*) & served by multiple bus routes
*Versatile potential for alternate development, including child care, medical & consulting rooms, or lifestyle options (subject to council approval)
"For visionaries seeking a remarkable opportunity, look no further. Seize the potential and make your mark in this thriving retail & residential hub".
For Further Information
Contact Morris Del Monte
0418 395 593
* Strategic 1,262sq m* site in a perfect location
*Approved permit for a premium project featuring 26 spacious apartments
*Thoughtfully designed with an average apartment size of 78sq m*, maximizing natural light
*Zoned Residential Growth Zone 1
*Exceptional location near the vibrant May Road/Station Street retail strips, with Coles & Woolworths just a short walk away
*Close to St Luke’s Primary School, Lalor Primary School, Lalor Secondary College & Peter Lalor Vocational College
*Conveniently within walking distance to Lalor Train Station (500m*) & served by multiple bus routes
*Versatile potential for alternate development, including child care, medical & consulting rooms, or lifestyle options (subject to council approval)
"For visionaries seeking a remarkable opportunity, look no further. Seize the potential and make your mark in this thriving retail & residential hub".
For Further Information
Contact Morris Del Monte
0418 395 593
Property Info
Municipality
Lalor
Thank You
Your enquiry has been sent!
Enquiry is Failed
Please contact your administrator.