CONTACT AGENT
76-80 Sturt Street, Adelaide, SA 5000
MIXED COMMERCIAL AND RESIDENTIAL INCOME EARNER
CHARACTER FEDERATION STYLE COMPRISING 3 GROUND FLOOR OFFICES OR SHOPS WITH 3 TOWNHOUSES ABOVE PLUS 3 UNDERCROFT CAR PARKS.
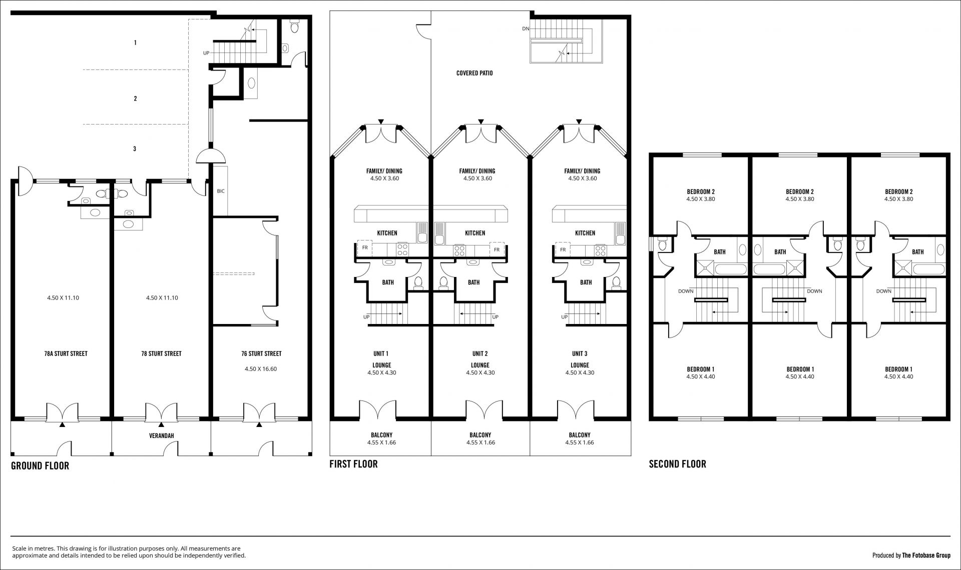
Firstly, the site comprises two separately titled allotments having a combined frontage of 15.98 metres and an average depth of 20.43 metres . The site area is 326 square metres and includes a shared Right of Way which provides access to the rear undercroft car parks.
Secondly, the building is mostly of solid brick construction with brick division walls separating each of the ground floor offices and each of the townhouses.
The commercial spaces are 76 sqm, 50 sqm and 50 sqm respectively. The townhouses are accessed via the covered rear patio and each comprise large lounge, kitchen/dine, two large bedrooms, fully fitted bathroom, 2nd toilet, separate laundry and balcony.
Ideal location close to Adelaide Central Market, China Town, Gouger Street eateries, Law Courts, Victoria Square and the very popular Glenelg Tram.
Huge potential – continue with current uses as offices or shops complimented with upper level private or serviced residential accommodation or consider dividing into multiple Community Titled lots (SNCC).
This is an impressive property and is worthy of your serious consideration.
For further details on the property or if you wish to arrange an inspection, please contact Geoff Cooney on 0411 660 266 or 8211 8777 or [email protected].
TAPLIN GROUP OF COMPANIES - RLA 994
Firstly, the site comprises two separately titled allotments having a combined frontage of 15.98 metres and an average depth of 20.43 metres . The site area is 326 square metres and includes a shared Right of Way which provides access to the rear undercroft car parks.
Secondly, the building is mostly of solid brick construction with brick division walls separating each of the ground floor offices and each of the townhouses.
The commercial spaces are 76 sqm, 50 sqm and 50 sqm respectively. The townhouses are accessed via the covered rear patio and each comprise large lounge, kitchen/dine, two large bedrooms, fully fitted bathroom, 2nd toilet, separate laundry and balcony.
Ideal location close to Adelaide Central Market, China Town, Gouger Street eateries, Law Courts, Victoria Square and the very popular Glenelg Tram.
Huge potential – continue with current uses as offices or shops complimented with upper level private or serviced residential accommodation or consider dividing into multiple Community Titled lots (SNCC).
This is an impressive property and is worthy of your serious consideration.
For further details on the property or if you wish to arrange an inspection, please contact Geoff Cooney on 0411 660 266 or 8211 8777 or [email protected].
TAPLIN GROUP OF COMPANIES - RLA 994
Property Info
Municipality
Adelaide
Thank You
Your enquiry has been sent!
Enquiry is Failed
Please contact your administrator.