SOLD
88 Dawson Street, Hawkesdale, VIC 3287
BUSINESS OPPORTUNITY OR PLACE TO CALL HOME
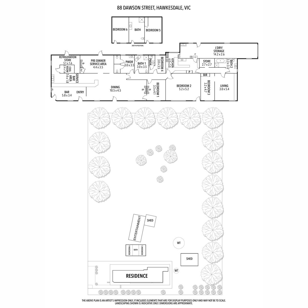
Take your pick – a great investment opportunity, chance to run your own business or simply a lovely place to live. The historic Hawkesdale Hotel was built in the 1850's and its charms have been lovingly retained. Fully re-wired, mostly replumbed, brand new carpets, brand new kitchen (suitable for commercial or residential needs) and repainted inside and out. All of the hard work has been done. 5 bedrooms, 4 bathrooms and a 3 bay shed, all situated on just over an acre. 15 minutes from Koroit, 20 minutes from Killarney, 25 minutes to Port Fairy and only 30 minutes from Warrnambool. Bar and restaurant area (functions up to 100 people), outdoor entertaining plus Airbnb capabilities. Currently tenanted for $650 per week, the property could also be an excellent addition to any investment portfolio. More details and photos to come, register your interest now.
*Please note – photos have been digitally decluttered.
*Please note – photos have been digitally decluttered.
Property Info
Municipality
Hawkesdale
LEGAL DOCUMENTS
Thank You
Your enquiry has been sent!
Enquiry is Failed
Please contact your administrator.