$1,275,000
1 & 3 Bayer Road, Elizabeth South, SA 5112
ANOTHER ONE UNDER THE HAMMER FOR RAY WHITE PORT ADELAIDE!
Nick Psarros and Penny Papazis from Ray White Port Adelaide are pleased to present to the market these two sites over two titles to be offered to the market as a whole "as is". Located in the northern growth corridor of Adelaide, 25kms from the Adelaide CBD and in one of the fastest growing regions of South Australia.
This site is situated on a prominent corner site of Hogarth and Bayer Roads with connectivity to all the major transport routes - Philip Highway, Northern Expressway, Main North Road and Port Wakefield Road.
Notable features:
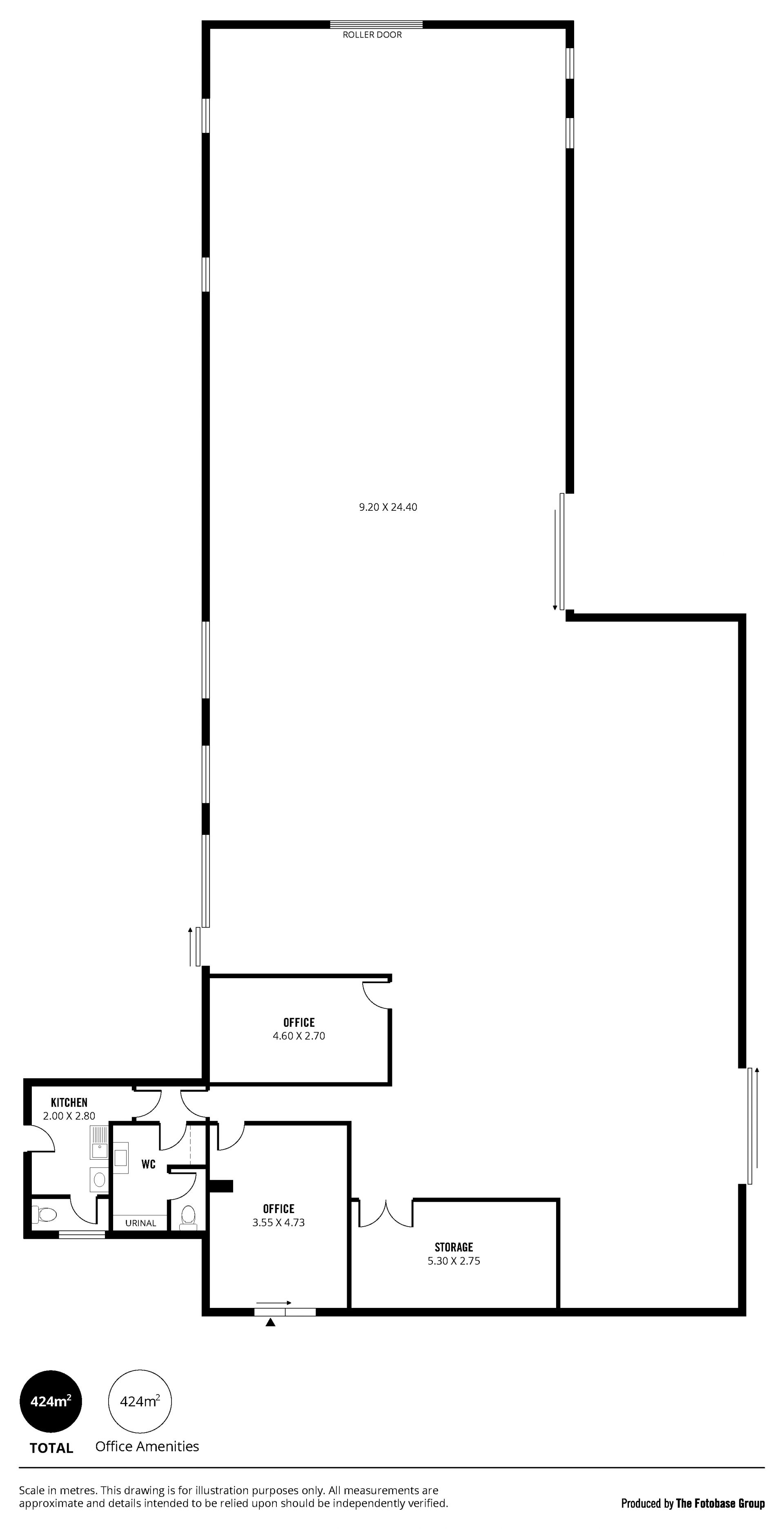
* Presentable office/amenities
* Dual street frontages to Bayer and Hogarth Roads
* High clearance warehousing
* No. 1 Bayer Road: Leased at $3,750 + GST per month.
* No. 3 - Shed A, B, C & D - occupied by current owner
Specifications:
CT / 5305/358 & 5412/838
Council / City of Playford
Zoning / E - Employment
Land / No.1 - 2,479m2 / No.3 - 2,049m2 (approx.)
Council Rates / $5,399.25pa & $5,534.00pa
SA Water / $309pq & $240pq
ES Levy / $772.55pa & $794.80pa
For more information and to register your interest, please contact Nick Psarros 0400 506 555 or Penny Papazis 0405 382 460.
Elizabeth South is a northern suburb of Adelaide, South Australia in the City of Playford. It was established in the late 1950s as one of the earliest residential suburbs of the planned City of Elizabeth. As for its neighbours including Elizabeth and Elizabeth North, it was configured as a local community around a small shopping centre containing a supermarket, bank, hotel and service station along with other shops. The western boundary is the Gawler railway line, with predominantly current and former Defence land on the other side, including the South Australian branch of the Defence Science and Technology Group opposite Elizabeth South railway station. The suburb is situated on both sides of Philip Highway. The northern part of the suburb (north of Hogarth Road) is a residential suburb, with corresponding schools, shops and other community services. South of Hogarth Road, the suburb is industrial, including automotive and Defence manufacturing, dominated by the large Holden factory, which opened in 1960 and closed in 2017.
The water tower near the railway line is 44.2 metres (145 ft) tall and the tank holds 250,000 imperial gallons . It was built around 1940 (before Elizabeth was established) to supply the munitions factory that is now repurposed as Defence Science and Technology.
Disclaimer: Neither the Agent nor the Vendor accept any liability for any error or omission in this advertisement.
Any prospective purchaser should not rely solely on 3rd party information providers to confirm the details of this property or land and are advised to enquire directly with the agent in order to review the certificate of title and local government details provided with the completed Form 1 vendor statement.
This site is situated on a prominent corner site of Hogarth and Bayer Roads with connectivity to all the major transport routes - Philip Highway, Northern Expressway, Main North Road and Port Wakefield Road.
Notable features:
* Presentable office/amenities
* Dual street frontages to Bayer and Hogarth Roads
* High clearance warehousing
* No. 1 Bayer Road: Leased at $3,750 + GST per month.
* No. 3 - Shed A, B, C & D - occupied by current owner
Specifications:
CT / 5305/358 & 5412/838
Council / City of Playford
Zoning / E - Employment
Land / No.1 - 2,479m2 / No.3 - 2,049m2 (approx.)
Council Rates / $5,399.25pa & $5,534.00pa
SA Water / $309pq & $240pq
ES Levy / $772.55pa & $794.80pa
For more information and to register your interest, please contact Nick Psarros 0400 506 555 or Penny Papazis 0405 382 460.
Elizabeth South is a northern suburb of Adelaide, South Australia in the City of Playford. It was established in the late 1950s as one of the earliest residential suburbs of the planned City of Elizabeth. As for its neighbours including Elizabeth and Elizabeth North, it was configured as a local community around a small shopping centre containing a supermarket, bank, hotel and service station along with other shops. The western boundary is the Gawler railway line, with predominantly current and former Defence land on the other side, including the South Australian branch of the Defence Science and Technology Group opposite Elizabeth South railway station. The suburb is situated on both sides of Philip Highway. The northern part of the suburb (north of Hogarth Road) is a residential suburb, with corresponding schools, shops and other community services. South of Hogarth Road, the suburb is industrial, including automotive and Defence manufacturing, dominated by the large Holden factory, which opened in 1960 and closed in 2017.
The water tower near the railway line is 44.2 metres (145 ft) tall and the tank holds 250,000 imperial gallons . It was built around 1940 (before Elizabeth was established) to supply the munitions factory that is now repurposed as Defence Science and Technology.
Disclaimer: Neither the Agent nor the Vendor accept any liability for any error or omission in this advertisement.
Any prospective purchaser should not rely solely on 3rd party information providers to confirm the details of this property or land and are advised to enquire directly with the agent in order to review the certificate of title and local government details provided with the completed Form 1 vendor statement.
Property Info
Municipality
Elizabeth South
- 4,528 Sqm
Ray White Port Adelaide Queenstown
129 Port Road
Queenstown, SA 5014
Tel: +61871236123
NEARBY PROPERTIES
188 Torrens & 247 South Roads,
RENOWN PARK
Medical/Consulting
18
1,416 Sqm
Nick Psarros
Thank You
Your enquiry has been sent!
Enquiry is Failed
Please contact your administrator.