$1.395M
G07/G08, 999 Nepean Highway, Moorabbin, VIC 3189
Near new Medical Suites in Prime Location
Phone enquiry code for this property : 8393
BAYSIDE MEDICAL/HEALTH SUITES
Near new, quality fit out as medical suite, in highly sought after location.
Clinic available equipped and furnished for medical practice if required (negotiable).
Situated in an extremely busy, bayside location near major arterial junction and established medical precinct.
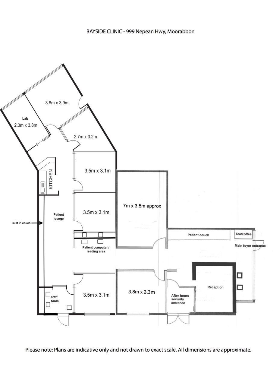
At 202 sq metres (plus 20 sq m storeage), the property consists of reception area plus 2nd patient lounge, 7 clinical rooms of varying sizes, 1 laboratory, 1 kitchenette, small staff room, large separate storage areas, underground parking for 5 cars plus ample on-street paring situated directly out the front of the clinic in the service Rd running parallel to Nepean Highway.
Suite is fit-out for medical purposes and available furnished if desired, including electronic patient beds, flat screen T.V’s in patient waiting areas, desktop computers, printers etc. (negotiable)
Excellent on street business signage.
Easily accessible by public transport with bus stop and taxi rank directly out the front of the clinic and train station at the closest corner.
In addition, the property can easily be adapted to an alternate use commercial premises / office etc, as the modern fit-out would lend itself to either.
The property actually sits on the border of 4 different suburbs, as each corner of the Nepean highway / south Rd intersection is located in a different suburb - Bentleigh, Brighton East, Hampton East and Moorabbin, so it does extend the accessibility to quite a large market.
Although situated in a thriving location, inside the clinic it is remarkably quiet.
A sound investment in a primary location extremely well suited for medical purposes.
Phone enquiry code for this property : 8393
BAYSIDE MEDICAL/HEALTH SUITES
Near new, quality fit out as medical suite, in highly sought after location.
Clinic available equipped and furnished for medical practice if required (negotiable).
Situated in an extremely busy, bayside location near major arterial junction and established medical precinct.
At 202 sq metres (plus 20 sq m storeage), the property consists of reception area plus 2nd patient lounge, 7 clinical rooms of varying sizes, 1 laboratory, 1 kitchenette, small staff room, large separate storage areas, underground parking for 5 cars plus ample on-street paring situated directly out the front of the clinic in the service Rd running parallel to Nepean Highway.
Suite is fit-out for medical purposes and available furnished if desired, including electronic patient beds, flat screen T.V’s in patient waiting areas, desktop computers, printers etc. (negotiable)
Excellent on street business signage.
Easily accessible by public transport with bus stop and taxi rank directly out the front of the clinic and train station at the closest corner.
In addition, the property can easily be adapted to an alternate use commercial premises / office etc, as the modern fit-out would lend itself to either.
The property actually sits on the border of 4 different suburbs, as each corner of the Nepean highway / south Rd intersection is located in a different suburb - Bentleigh, Brighton East, Hampton East and Moorabbin, so it does extend the accessibility to quite a large market.
Although situated in a thriving location, inside the clinic it is remarkably quiet.
A sound investment in a primary location extremely well suited for medical purposes.
Phone enquiry code for this property : 8393
Property Info
Municipality
Moorabbin
NEARBY PROPERTIES
Thank You
Your enquiry has been sent!
Enquiry is Failed
Please contact your administrator.